| Číslo zakázky: | 25-05-006 | ![]() Karta nemovitosti |
|---|---|---|
| Typ zakázky: | prodej |
Příběh tohoto domu se začal psát v roce 1961, kdy se v rámci družstevní výstavby postavilo v ulici několik bytových rodinných domů. Ke koupi tu nabízíme polovinu jednoho z nich, tedy jeden samostatný prostorný byt se zahradou.
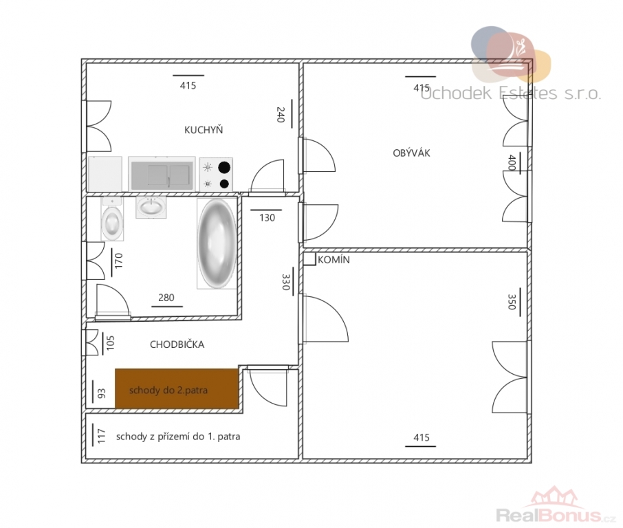
Jedná se o horní polovinu polořadového domu, kde je byt o dispozici 5+1 a výměře 113m2. V patře bytu jsou dva pokoje, kuchyň a koupelna s WC. Využitý je i půdní prostor, kde jsou 3 podkrovní ložnice a druhá koupelna. Dále je tu hned u vstupu technická místnost a nad ní další skladovací prostory pro všechny vaše (ne)zbytnosti. Ve fotogalerii jsou doplněné i vizualizace návrhového stavu.
Technické info - Vytápění a TUV je řešeno plynovým kondenzačním kotlem. Na podlaze zachovalé parkety, plovoučka, dlažba. Do domu jsou navedeny kompletní inženýrské sítě. Byt v průběhu let procházel dílčími rekonstrukcemi a průběžnou údržbou. Díky tomu je vhodný k okamžitému nastěhování.
Za domem je zahrada o výměře 367m2, která čeká na vaši péči. Teď je tu několik ovocných stromů a posezení, ale díky umístění mezi zahradami a celodennímu sluníčku si tu můžete třeba i splnit své sny o zahradničení.
Mě se na tom líbí, že jsou zde spojené výhody bytu I rodinného domu a konkrétně tento určitě doporučím ke koupi!
Město Velké Opatovice nabízí kompletní občanskou vybavenost, pár metrů od domu je základka I ZUŠka, obchod, Orlovna, kostel, cyklostezka, zámek, park...
Pozn.: Energetický štítek je ve stádiu zpracování, prozatím dle zákona uvádíme G. Uvedená kupní cena je bez zprostředkovatelského poplatku 250.000 Kč. Financování pomůžeme zařídit.
| Cena: | (za nemovitost) 4 499 000,- Kč |
|---|
| Dispozice bytu | 5+1 |
|---|---|
| Číslo podlaží v domě | 2 |
| Celková podlahová plocha | 113 m² |
| Druh objektu | cihlová |
| Stav objektu | velmi dobrý |
| Energetická třída | G - Mimořádně nehospodárná |
| Vlastnictví | osobní |
| Umístění objektu | klidná část obce |
| Odpad | Městská kanalizace |
| Plyn | Zaveden |
| Stáří objektu | 1 961 |
| Počet míst k parkování | 1 |
| Užitná plocha | 113 m² |
| Plocha zahrady | 367 m² |




