| Číslo zakázky: | 4.1A | ![]() Karta nemovitosti |
|---|---|---|
| Typ zakázky: | prodej |
Rezidence Mánesova ? nové bydlení na dobré adrese v Boskovicích
Představujeme vám byt 3+kk v nově vznikající Rezidenci Mánesova, projektu situovaném v jedné z nejžádanějších lokalit Boskovic.
Rezidence Mánesova vznikne na místě bývalé kotelny, která byla již zdemolována. Na tomto pozemku vyroste zcela nový bytový dům, navržený s důrazem na kvalitu, úspornost a moderní architekturu.
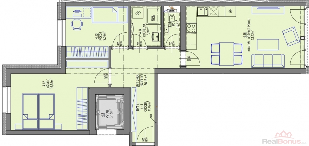
Dispozice bytu 3+kk:
Pokoj s kuchyňským koutem: 23,22 m2
Předsíň: 11,02 m2
Ložnice: 16,55 m2
Dětský pokoj: 9,59 m2
Koupelna: 3,91 m2
WC: 1,83 m2
Hlavní přednosti bytu:
Promyšlené dispoziční řešení s důrazem na světlost a praktičnost
Kvalitní standardy vybavení (podlahy, dveře, obklady ? možnost výběru)
Velká okna a dostatek denního světla
Lodžie pro odpočinek a výhled do klidného okolí
Energeticky úsporný provoz (nízké náklady na bydlení)
?Lokalita, kde se dobře žije.
Rezidence Mánesova se nachází v klidné a zelené části města, ale zároveň jen pár minut chůze od centra Boskovic.
V blízkosti naleznete:
Mateřské a základní školy
Obchody, lékaře a další služby
Sportoviště, cyklostezky, dětská hřiště
Městský park a kulturní místa
Proč právě tento byt:
Skvělá poloha a dostupnost služeb
Vysoký standard bydlení v novostavbě
Ideální volba pro mladé páry, jednotlivce nebo seniory
Výborná investice do budoucna
Neváhejte ? počet bytů je omezený!
Rezervujte si své místo včas a upravte si byt podle svých představ.
Financování projektu zajišťuje ČSOB. Splátky jsou ukládány na projektový účet.
Kontaktujte nás pro více informací a prohlídku.
Rezidence Mánesova ? váš nový začátek na skvělé adrese.
| Cena: |
(za nemovitost) 6 473 000,- Kč
(včetně provize)
|
|---|
| Dispozice bytu | 3+kk |
|---|---|
| Číslo podlaží v domě | 4 |
| Počet podlaží objektu | 6 |
| Celková podlahová plocha | 63 m² |
| Druh objektu | skeletová |
| Stav objektu | projekt |
| Energetická třída | B - Velmi úsporná |
| Vlastnictví | osobní |
| Počet podlaží pod zemí | 1 |
| Užitná plocha | 63 m² |
| Charakter okolní zástavby | obytná |




