| Číslo zakázky: | 4.5D | ![]() Karta nemovitosti |
|---|---|---|
| Typ zakázky: | prodej |
Rezidence Mánesova ? nové bydlení na dobré adrese v Boskovicích
Představujeme vám byt 3+kk v nově vznikající Rezidenci Mánesova, projektu situovaném v jedné z nejžádanějších lokalit Boskovic.
Rezidence Mánesova vznikne na místě bývalé kotelny, která byla již zdemolována. Na tomto pozemku vyroste zcela nový bytový dům, navržený s důrazem na kvalitu, úspornost a moderní architekturu.
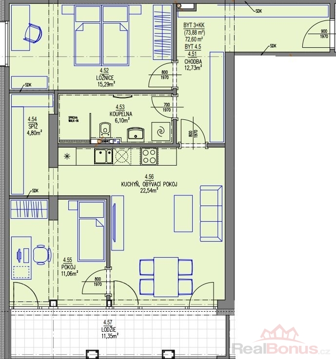
Dispozice bytu 3+kk:
Pokoj s kuchyňským koutem: 22,54 m2
Předsíň: 12,73 m2
Ložnice: 15,29 m2
Koupelna: 6,10 m2
Spíž: 4,80 m2
Pokoj: 11,60 m2
Lodžie: 11,35 m2
Hlavní přednosti:
Promyšlené dispoziční řešení s důrazem na světlost, funkčnost a dostatek úložného prostoru
Velká okna a orientace na světové strany zajišťují dostatek denního světla
Kvalitní standardy vybavení ? podlahy, dveře, obklady, sanita ? možnost výběru podle vašeho vkusu
Energeticky úsporný provoz ? nízké náklady na bydlení díky moderním technologiím
Lokalita, kde se dobře žije.
Rezidence Mánesova se nachází jen pár minut chůze od centra.
Vše potřebné budete mít po ruce:
Mateřské a základní školy
Obchody, lékaře a další služby
Sportoviště, cyklostezky, dětská hřiště
Městský park a kulturní zařízení
Proč právě tento byt?
Skvělá poloha a dostupnost služeb
Vysoký standard novostavby s možností úprav interiéru
Možnost přikoupení sklepa a parkovacího stání
Ideální pro mladé páry, jednotlivce i seniory
Výborná investice do budoucna
Financování projektu zajišťuje ČSOB. Splátky jsou ukládány na projektový účet.
Kontaktujte nás pro více informací a osobní konzultaci.
Rezidence Mánesova ? váš nový začátek na skvělé adrese.
| Cena: |
(za nemovitost) 8 070 505,- Kč
(včetně provize)
|
|---|
| Dispozice bytu | 3+kk |
|---|---|
| Číslo podlaží v domě | 4 |
| Počet podlaží objektu | 6 |
| Celková podlahová plocha | 84 m² |
| Druh objektu | skeletová |
| Stav objektu | projekt |
| Energetická třída | B - Velmi úsporná |
| Vlastnictví | osobní |
| Počet podlaží pod zemí | 1 |
| Lodžie | 11 m² |
| Vybavení | lodžie |
| Celková plocha | 84 m² |
| Užitná plocha | 73 m² |
| Charakter okolní zástavby | obytná |




