Pronájem komerčního objektu : Sklad, Hořovice (okres Beroun)

Pronájem komerčního objektu : Sklad, Hořovice (okres Beroun)

Nemovitost nabízí:

Černý Milan
Černý Milan
Mobil: +420 737 851 059
archa-rk@seznam.cz

Kontaktovat makléře

Odeslat
Číslo zakázky: 5616  
Karta
nemovitosti
Typ zakázky: pronájem
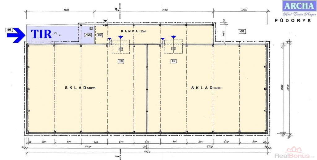
Nájem skladové haly, plocha 2098 m2, přízemí, rampa, HOŘOVICE (Exit D5 Žebrák)

Nabízíme k nájmu skladově výrobní halu o celkové rozloze 2.098 m2 modernizovanou v roce 2016 na vyšší standard.
Ke skladové hale jsou k dispozici manipulační, parkovací či ložné pozemky o rozloze cca 1100 m2.
Preferujeme především dlouhodobý nájem.

Plocha skladu: 2098 m2 vč. kryté rampy
Cena nájmu skladu: 125 Kč/m2/měsíc
Cena manipulačních pozemků: 25 Kč/m2/měsíc ( cca 1.100 m2 )

Skladová hala je po plné rekonstrukci, jedná se o dvoulodní průmyslový objekt s kancelářemi a zázemím.
Vše izolováno a vytápěno. Využitelná výška skladu je 5 až 7 m. Osvětlení i střešní světlíky.
Zátěžová podlaha, mostový jeřáb 16 tun, plynové topení Monzun.
Vhodné pro skladování i výrobu.
Mimo kryté rampy disponuje hala 2x vjezdovými vrty 4 x 4,5 m.
V hale je k dispozici zázemí pro zaměstnance. či kuchyňka.
Venkovní manipulační, parkovací a skladové plochy - asfalt, beton.

Provizi neplatíte.

ARCHA realitní kancelář
PRAHA
Telefon: 737851059, 702072257, 608135458
E-mail: archa-rk@seznam.cz
www.instagram.com/nemovitosti_archa
www.facebook.com/nemovitosti.archa
www.twitter.com/archa_life
www.archa-rk.cz

Cena: (za m2 / měsíc)   125,- Kč

Informace o nemovitosti

Číslo podlaží v domě1
Počet podlaží objektu1
Druh objektusmíšená
Stav objektupřed rekonstrukcí
Energetická třídaC - Úsporná
Umístění objektucentrum
VybavenoČástečně zařízeno
TopeníÚstřední - dálkové
Elektřina230 V
Připojení na internetJiné
Celková plocha100 m²
Účel budovySklad
Inženýrské sítěVodovod
Kanalizace
Elektřina
Druh stavbybudova/y, hala/y
Poloha objektuv bloku
Druh prostorSkladovací
C - Úsporná

Energetická náročnost:


RealBonus.cz

Používáme cookies!

Tyto stránky používají a ukládají soubory cookies. Některé jsou nezbytné pro jejich správné fungování (tzv. technické cookies). Dále tyto stránky využívají marketingové a analytické cookies pro zkvalitnění našich služeb a přizpůsobení zobrazovaného obsahu. Pro jejich využití je nutný Váš souhlas. Více informací o cookies.