Pronájem komerčního objektu : Sklad, Hořovice (okres Beroun)

Pronájem komerčního objektu : Sklad, Hořovice (okres Beroun)

Nemovitost nabízí:

ARCHA - průmyslová kancelář spol s.r.o.
Praha 5 - Košíře, BUSINESS CENTRUM KLAMOVKA, Plzeňská 155/113, PSČ
15000archacs.cz
ČERNÝ Pavel
ČERNÝ Pavel
Mobil: +420 608 827 778
archa.sklady@seznam.cz

Kontaktovat makléře

Odeslat
Číslo zakázky: 2640  
Karta
nemovitosti
Typ zakázky: pronájem
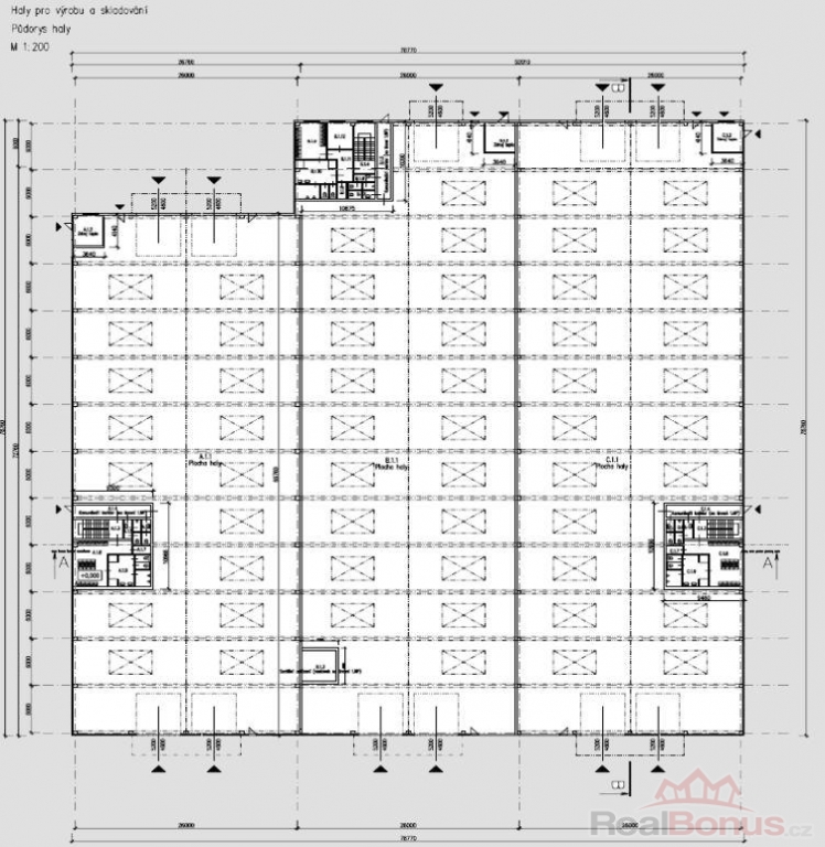
Nájem skladově-výrobních prostor - 5.900 m2, Hořovice (projekt)

Nabízíme nájem 3 lodní haly 5900 m2, do 24 měsíců od dohody, Hořovice, exit D5 - Žebrák.
---------------------------------------------
Velikost haly : 5.900 m2
Cena (orientační - dle požadavků ) 187,-Kč/m2/měsíc + energie (7,5Euro/m2/m )
--------------------------------------------
Jedná se dle projektu a povolení o 1x skladovací trojlodní halu o celkové velikosti 5.900 m2, Rozměry hal : 1x 1.800 m2 ( 26,4 x 66,8m ), 2x po 2.050 m2 ( 26 x 78,8 m). Areál vznikne po sanaci dnešního výrobního závodu, a bude dle odsouhlaseného projektu sloužit k nájmu skladů, tak zavedení výroby. . Plánovanou součástí každé haly je administrativně-sociální, třípodlažní vestavba. Celková světlá výška halového objektu cca 15 m. Možné stavební úpravy dle požadavků zájemce.....

Cena: na vyžádání v RK

Informace o nemovitosti

Číslo podlaží v domě1
Počet podlaží objektu1
Druh objektusmíšená
Stav objektunovostavba
Umístění objektuokrajová zástavba
VybavenoČástečně zařízeno
TopeníÚstřední - plynové
Elektřina230 V
PlynZaveden
Účel budovySklad
Výrobní plocha5 900 m²
Dílna5 900 m²
Inženýrské sítěVodovod
Kanalizace
Plyn
Elektřina
Druh stavbybudova/y, hala/y
Poloha objektusamostatný
Druh prostorSkladovací
RealBonus.cz

Používáme cookies!

Tyto stránky používají a ukládají soubory cookies. Některé jsou nezbytné pro jejich správné fungování (tzv. technické cookies). Dále tyto stránky využívají marketingové a analytické cookies pro zkvalitnění našich služeb a přizpůsobení zobrazovaného obsahu. Pro jejich využití je nutný Váš souhlas. Více informací o cookies.