| Číslo zakázky: | 653349 |  Karta nemovitosti | 
|---|---|---|
| Typ zakázky: | prodej | 
, krásný rovinatý stavební pozemek 901 m v klidné části obce Krásný Dvůr Brody. Napojení parcely na sítě (voda, elektřina) zajištěno, na patě hlavní parcely se nachází přípojky od stejného majitele. 
Spojuje klidné bydlení obklopené přírodou s výbornou dostupností do blízkých měst s kompletní občanskou vybaveností. Díky rozvoji obce a rostoucí poptávce po rodinném bydlení představují nabízené pozemky mimořádnou investiční příležitost.
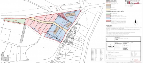
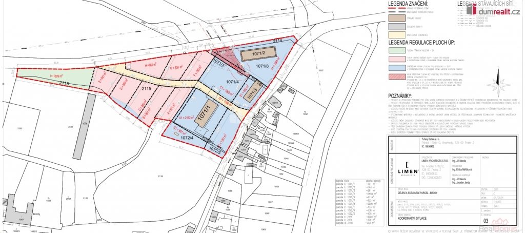
Soubor 1
 Celková plocha: cca 8 800 m
Parcely: č. 2115/1, 2115/2, 2115/3, 2115/4, 2115/5, 2115/6, 2115/7, 2115/8,
Podíl na komunikacích které jsou již stavebně řešeny
Soubor 2 
Celková plocha: cca 6600 m
Parcely: č. 2116/1, 2116/2, 2116/3, 2116/4, 2116/5, 2116/6
 
 Stavební podmínky
 výstavba rodinných domů do dvou nadzemních podlaží se sedlovou střechou, koeficient zastavěnosti 30 % na každém pozemku
 klidná a žádaná lokalita pro bydlení i investici
Inženýrské sítě: Veškeré práce na zasíťování byly provedeny  k dispozici je kompletní dokumentace o průběhu a rozsahu prací.
Možnosti prodeje
 možnost koupě jednotlivých pozemků (od 760 do 900 m), nebo koupi obou souborů najednou (celkem 14 000 m)
 Investiční potenciál
 rychle se rozvíjející lokalita v těsném sousedství Krásného Dvora, vysoká poptávka po rodinném bydlení, stabilní růst hodnoty pozemků v této oblasti, vhodné jak pro developery, tak pro investory hledající bezpečné uložení kapitálu, či klienty, kteří si chtějí postavit svůj rodinný dům.
 Informace a prohlídky
Podrobné informace o parcelách, možnosti osobní prohlídky Vám poskytne pověřený realitní makléř.
V případě zájmu o jakékoli pozemky v této lokalitě nás prosím kontaktujte. K této nabídce Vám zcela zdarma zajistíme nejlepší financování na trhu. Doporučujeme Ev. číslo: 652735.
| Cena: | (za nemovitost) 1 300 000,- Kč | 
|---|
| Vlastní pozemek | 901 m² | 
|---|---|
| Umístění objektu | klidná část obce | 
| Druh pozemku | pro bydlení | 




