| Číslo zakázky: | D/RSB/149/22-13 | ![]() Karta nemovitosti |
|---|---|---|
| Typ zakázky: | prodej |
Ve výhradním zastoupení investora nabízíme k prodeji byt s dispozicí 1+kk s balkonem. Velmi pěkný byt vzniká v novém projektu, který navazuje na úspěšnou první etapu. Byt je orientovaný do klidného vnitrobloku a splňuje vysoké nároky na klidné a komfortní bydlení. Koupě bytu je skvělou příležitostí pro startovací bydlení nebo výhodnou investicí. Bytový projekt vzniká v progresivní lokalitě s bohatou kulturní historií a výbornou dostupností do centra města. Jednou z mnoha předností projektu bude uzavřený vnitroblok plný zeleně, kde můžete trávit čas s dětmi nebo jen tak odpočívat. K bytu je možnost přikoupit parkovací stání.
Symbiózou nadstandardního zateplení, kvalitních oken, použitých stavebních materiálů a moderních technologií vytápění se podařilo projekt BD LIDO realizovat v energetické třídě A, což znamená mimořádnou úspornost!
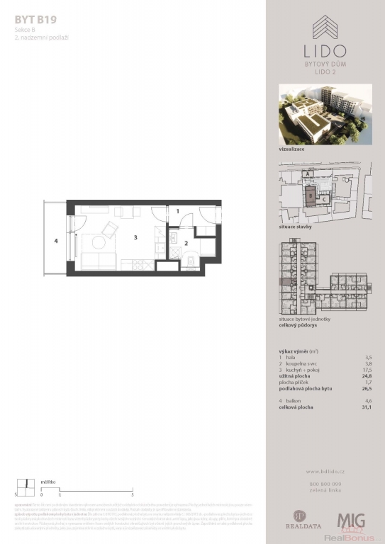
Dispozice bytu:
vstupní chodba (3,5 m2), obývací pokoj s kuchyňským koutem (17,5 m2), koupelna s WC (3,8 m2), balkon (4,6 m2)
| Cena: |
(za nemovitost) 4 700 000,- Kč
(neplatíte provizi)
|
|---|
| Dispozice bytu | 1+kk |
|---|---|
| Číslo podlaží v domě | 3 |
| Počet podlaží objektu | 5 |
| Celková podlahová plocha | 26 m² |
| Druh objektu | cihlová |
| Stav objektu | ve výstavbě (hrubá stavba) |
| Energetická třída | A - Mimořádně úsporná |
| Vlastnictví | osobní |
| Plocha balkonu | 4 m² |
| Vybavení | balkon |
| Užitná plocha | 26 m² |




