| Číslo zakázky: | D/RSB/149/22/2 | ![]() Karta nemovitosti |
|---|---|---|
| Typ zakázky: | prodej |
V exkluzivním zastoupení investora nabízíme k prodeji moderní ateliér 1+kk s balkonem v nově dokončeném rezidenčním projektu BD LIDO. Tento pečlivě navržený prostor se nachází v dynamicky se rozvíjející lokalitě s bohatou historií a výbornou dostupností do centra města.
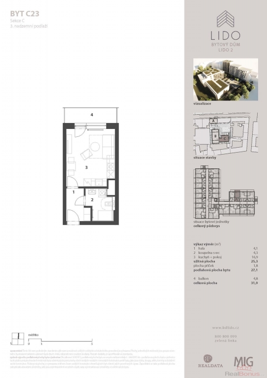
Jednotka se skládá ze vstupní haly, koupelny s WC a obytné místnosti s přípravou pro kuchyňský kout. K ateliéru náleží balkon orientovaný do klidného vnitrobloku, který poskytuje příjemný venkovní prostor k relaxaci.
Projekt BD LIDO je navržen s důrazem na kvalitní bydlení a úsporný provoz. Díky nadstandardnímu zateplení, moderním technologiím vytápění a použití prvotřídních stavebních materiálů splňuje energetickou třídu A, což zajišťuje nízké provozní náklady. Součástí komplexu je uzavřený vnitroblok. Každý z bytů má přístup na prostornou společnou terasu a projekt se pyšní zelenými střechami, které přispívají k příjemnému mikroklimatu a estetice celého areálu.
V nabídce jsou i další typy jednotek, které vám rádi představíme na osobní prohlídce. Ke každé jednotce je možnost dokoupení parkovacího stání. Nechte se okouzlit tímto jedinečným projektem a najděte svůj nový domov právě zde!
Dispozice bytu:
hala (4,1 m2), obývací pokoj s kuchyňským koutem (16,9 m2), koupelna s WC (4,3 m2), balkon (4,8 m2)
| Cena: |
(za nemovitost) 4 700 000,- Kč
(neplatíte provizi)
|
|---|
| Dispozice bytu | 1+kk |
|---|---|
| Číslo podlaží v domě | 3 |
| Počet podlaží objektu | 3 |
| Celková podlahová plocha | 27 m² |
| Druh objektu | cihlová |
| Stav objektu | novostavba |
| Energetická třída | A - Mimořádně úsporná |
| Vlastnictví | osobní |
| Plocha balkonu | 5 m² |
| Vybavení | balkon |
| Užitná plocha | 27 m² |




