| Číslo zakázky: | 32009 | ![]() Karta nemovitosti |
|---|---|---|
| Typ zakázky: | prodej |
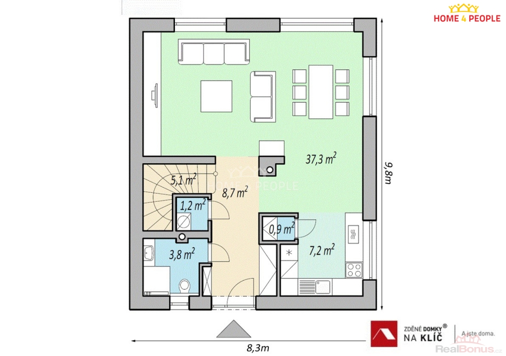
Cena včetně výstavby domu, kolaudace, pozemku, terasy, parkování a zahrady. Dům č.1, Zprostředkujeme Vám výstavbu novostavby rodinného domu 4+kk o celkové podlahové výměře 121 m s terasou, zahradou a parkovacím místem přímo v srdci Luhačovic.
Představujeme vám jedinečnou příležitost vlastnit moderní a flexibilní dvoupodlažní rodinný dům na klíč, situovaný v samém centru prestižních Luhačovic.
Tato luxusní novostavba splňuje ty nejvyšší nároky na komfortní bydlení a zároveň otevírá neomezené možnosti pro investici a podnikání.
Bydlení, kde se potkává luxus s flexibilitou.
Bydlete v pěší dostupnosti centra města, lázeňské kolonády a veškeré občanské vybavenosti. Život v centru Luhačovic nikdy nebyl pohodlnější.
Dům o dispozici 5+kk s promyšleným dvoupodlažním uspořádáním poskytuje dostatek soukromí a prostoru pro velkou rodinu.
Každé podlaží je navrženo pro maximální pohodlí, včetně samostatné koupelny s WC.
Vychutnejte si ranní kávu nebo večerní posezení na prostorné terase s výhledem do privátní zahrady, která tvoří klidnou oázu uprostřed města.
Zajištěno je parkovací stání pro 2 automobily přímo u domu.
Nenechte si ujít tuto exkluzivní šanci vlastnit luxusní rodinnou vilu v jedné z nejvyhledávanějších lázeňských lokalit v Česku.
Ať už hledáte ideální rodinné sídlo, nebo chytrou investiční příležitost, tento dům je připraven splnit vaše sny.
Projekt domu nakreslený a schválený. Stavební povolení vydané, můžeme zahájit stavbu do 14 dnů od podpisu smlouvy.
Pro kompletní specifikace, vizualizace a sjednání osobní schůzky nás neváhejte kontaktovat. Ev. číslo: 32009. Energetický štítek: A (49 kWh/m2/rok).
| Cena: |
(za nemovitost) 10 699 000,- Kč
(Cena včetně výstavby domu, kolaudace, pozemku, terasy, parkování a zahrady. Dům č.1)
|
|---|
| Počet podlaží objektu | 2 |
|---|---|
| Celková podlahová plocha | 121 m² |
| Druh objektu | cihlová |
| Stav objektu | ve výstavbě (hrubá stavba) |
| Energetická třída | A - Mimořádně úsporná |
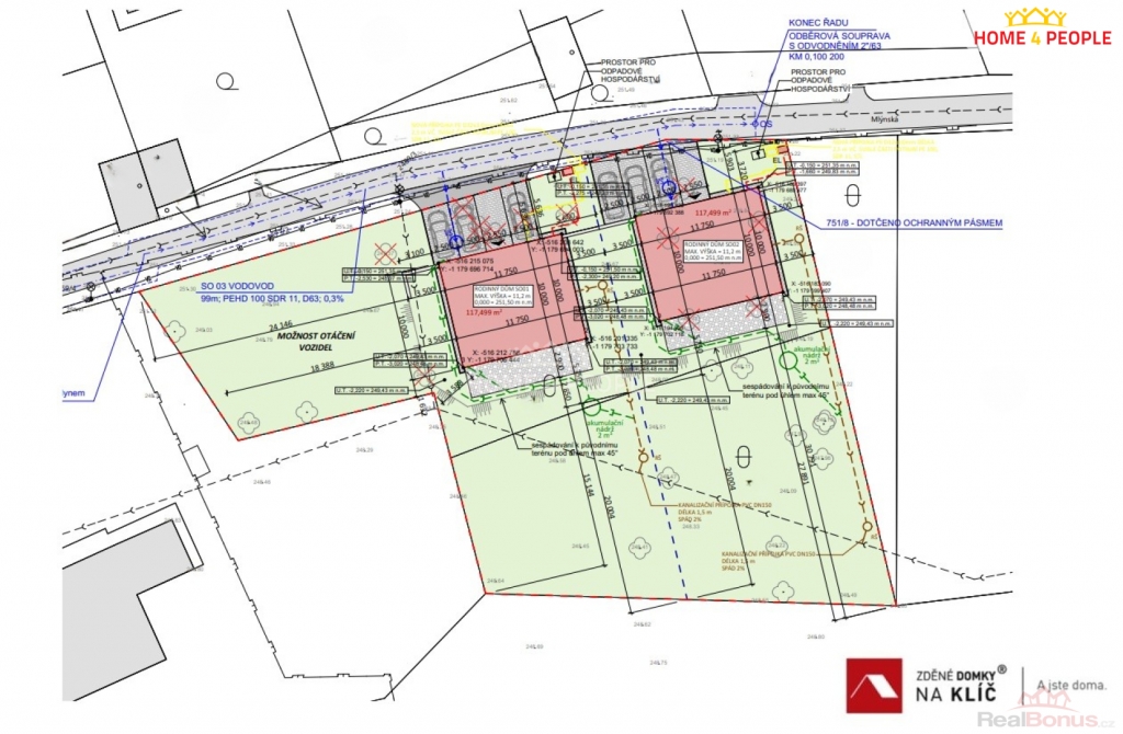
| Vlastní pozemek | 895 m² |
| Umístění objektu | centrum |
| Počet míst k parkování | 2 |
| Zastavěná plocha | 81 m² |
| Užitná plocha | 121 m² |
| Poloha objektu | samostatný |
