| Číslo zakázky: | 31996 | ![]() Karta nemovitosti |
|---|---|---|
| Typ zakázky: | prodej |
Cena včetně výstavby domu, kolaudace, pozemku, terasy, parkování a zahrady. Dům číslo 1., Zprostředkujeme Vám výstavbu novostavby domu 6+kk s komercí, terasou, zahradou a parkovacím místem přímo v srdci Luhačovic.
Představujeme vám jedinečnou příležitost vlastnit moderní a flexibilní třípodlažní rodinný dům na klíč, situovaný v samém centru prestižních Luhačovic.
Tato luxusní novostavba splňuje ty nejvyšší nároky na komfortní bydlení a zároveň otevírá neomezené možnosti pro investici a podnikání.
Bydlení, kde se potkává luxus s flexibilitou
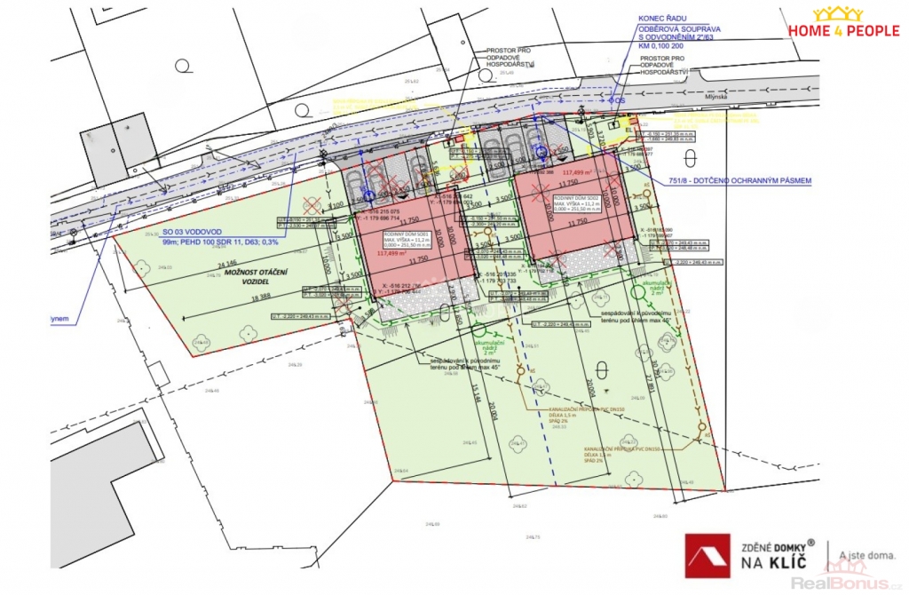
Nepřekonatelná poloha: Bydlete v pěší dostupnosti lázeňské kolonády, kaváren a veškeré občanské vybavenosti. Život v centru Luhačovic nikdy nebyl pohodlnější.
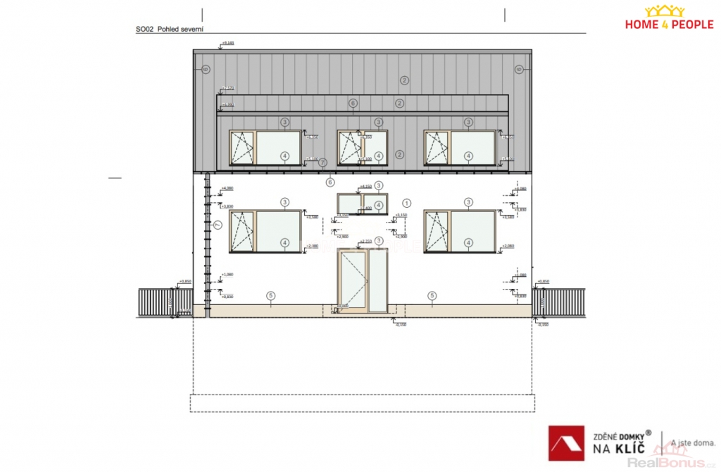
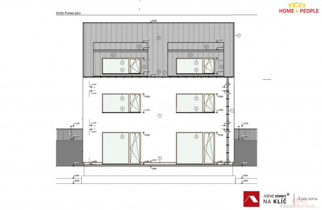
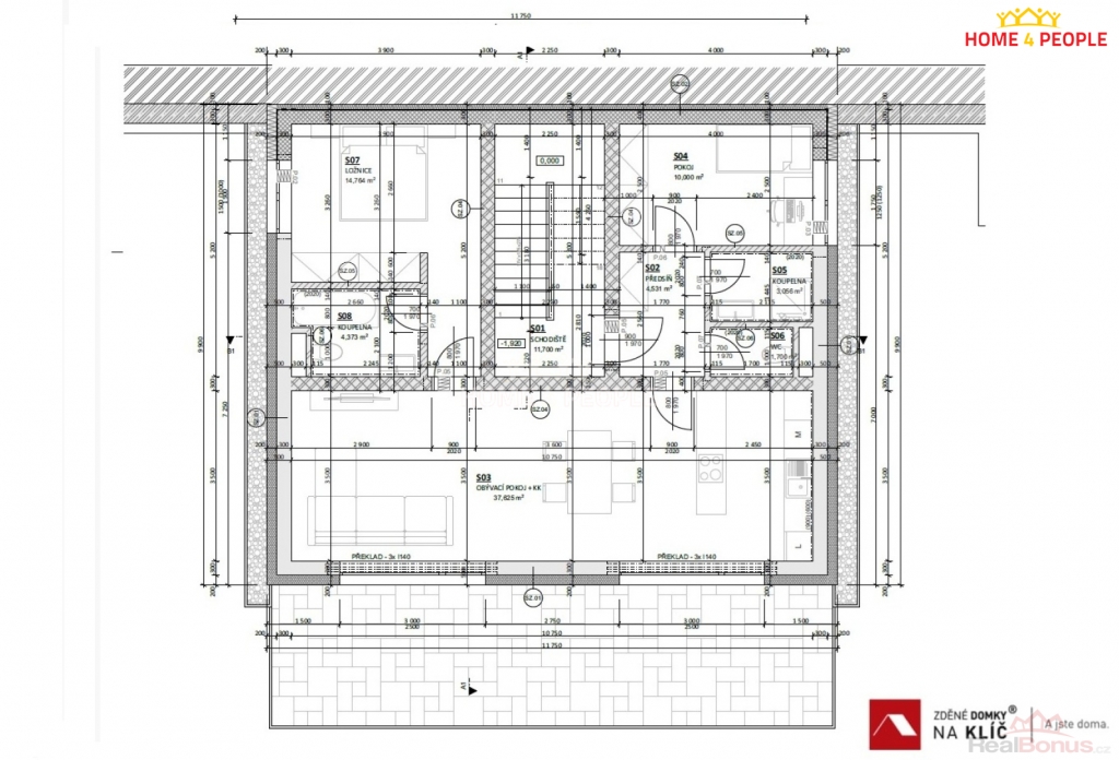
Prostornost a design: Dům o dispozici 6+kk s promyšleným třípodlažním uspořádáním poskytuje dostatek soukromí a prostoru pro velkou rodinu.
Komfort každého patra: Každé podlaží je navrženo pro maximální pohodlí, včetně samostatné koupelny s WC, což umožňuje snadné rozdělení na až 3 nezávislé bytové jednotky.
Váš soukromý relax: Vychutnejte si ranní kávu nebo večerní posezení na prostorné terase s výhledem do privátní zahrady, která tvoří klidnou oázu uprostřed města.
Nadstandardní potenciál pro Váš business
Jedinečná možnost využít přízemí domu jako reprezentativní komerční prostory (kanceláře, ordinace, ateliér) s vlastním vstupem, čímž získáte ideální kombinaci bydlení a podnikání pod jednou střechou.
Parkování a zázemí
Pohodlné parkování: Zajištěno je parkovací stání pro 2 automobily přímo u domu.
Možnost garáže: Pro maximální komfort a bezpečí je zde možnost dobudování vlastní garáže.
Nenechte si ujít tuto exkluzivní šanci vlastnit multifunkční luxusní rodinnou vilu v jedné z nejvyhledávanějších lázeňských lokalit v Česku.
Ať už hledáte ideální rodinné sídlo, nebo chytrou investiční příležitost, tento dům je připraven splnit vaše sny.
Stavbu můžeme zahájit do 14dnů od podpisu smlouvy. Stavební povolení je vydáno, takže zde není žádné zdržení s jeho vyřízením.
Pro kompletní specifikace, vizualizace a sjednání osobní schůzky nás neváhejte kontaktovat. Ev. číslo: 31996. Energetický štítek: A (49 kWh/m2/rok).
| Cena: |
na vyžádání v RK (Cena včetně výstavby domu, kolaudace, pozemku, terasy, parkování a zahrady. Dům číslo 1.)
|
|---|
| Počet podlaží objektu | 3 |
|---|---|
| Celková podlahová plocha | 260 m² |
| Druh objektu | cihlová |
| Stav objektu | ve výstavbě (hrubá stavba) |
| Energetická třída | A - Mimořádně úsporná |
| Vlastní pozemek | 850 m² |
| Umístění objektu | centrum |
| Počet míst k parkování | 2 |
| Zastavěná plocha | 117 m² |
| Užitná plocha | 260 m² |
| Poloha objektu | samostatný |
