| Číslo zakázky: | 5774 | ![]() Karta nemovitosti |
|---|---|---|
| Typ zakázky: | prodej |
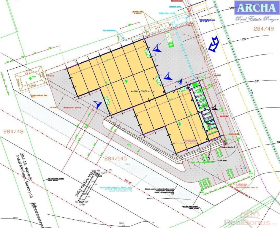
Prodáme komerční pozemek o rozloze 9.892 m2 u obce Bavoryně v Průmyslové zóně.
Zóna se nachází se u hlavní komunikace (Plzeňská), též nedaleko od sjezdu z Dálnice D5 (Exit Bavoryně).
Velikost pozemku celkem: 9.892 m2
-----------------------------------------
- možné zastavěné plochy 2.031 m2
- možné zpevněné plochy a manipulace 2.065 m2
- možná ostatní (zeleň, ploty a pod ) 5.796 m2
Cena za celek: 1 990 Kč/m2
Rovinný pozemek se nachází v Průmyslové nově vzniklé zóně Bavoryně, v blízkosti Editu dálnice D5.
Pozemek je z části omezen zde probíhajícím VN a ochranným pásmem dle zákona.
Byla vypracována a schválena studie zastavitelnosti a to na stavbou 2.031 m2 se zpevněnými plochami 2.0650 m2.
Příjezdovou komunikace buduje obec.
Přípojky projednány a odsouhlaseny,
Lze zaslat plné znění UR, jež popisuje napojení areálu a jejich specifikace.
Vhodné pro realizaci průmyslové haly pro sklad či výrobu s administrativním zázemím.
Pozemek je viditelný z Dálnice D5.
Provizi neplatíte
ARCHA realitní kancelář
PRAHA
Telefon: 737851059, 702072257, 608135458
Email: archa-rk@seznam.cz
www.facebook.com/nemovitosti.archa
www.twitter.com/archa_life
www.instagram.com/nemovitosti_archa
www.archa-rk.cz
| Cena: | na vyžádání v RK |
|---|
| Číslo podlaží v domě | 1 |
|---|---|
| Vlastní pozemek | 9 892 m² |
| Elektřina | 230 V |
| Plyn | Zaveden |
| Připojení na internet | Jiné |
| Celková plocha | 10 378 m² |
| Plocha parcely | 9 892 m² |
| Druh pozemku | pro komerční výstavbu |
| Inženýrské sítě | Kanalizace Plyn Elektřina |




