| Číslo zakázky: | 5468 | ![]() Karta nemovitosti |
|---|---|---|
| Typ zakázky: | prodej |
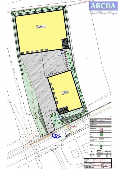
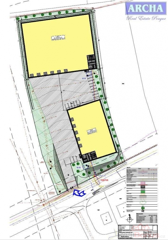
Prodej komerčního pozemku u hlavní komunikace, výměra 9 984 m2, Exit dálnice D5 - Cerhovice.
Pozemek navazuje na průmyslovou zónu, již bylo projednáno na Stavebním úřadě Územní rozhodnutí o umístění stavby - skladových objektů.
Pozemek je napojení na hlavní komunikaci Praha - Plzeň.
Rozloha pozemku: 9984 m2
Cena: 3950 Kč/m2
Prodáme pozemek s projednaným Územním rozhodnutím na sklady, sítě a napojení na komunikaci. Dokumentaci nutno projednat novým nabyvatelem dle jeho individuálního záměru.
Prodej pozemku pouze jako celek.
Nájezd a výjezd na pozemek je koncipován pro nákladní dopravu.
Územní plán obce eviduje pozemek jako VK (sklady). Více možných variant výstavby.
Vše bez zástav a břemen.
Prodej lze realizovat IHNED
Provizi neplatíte
ARCHA realitní kancelář
PRAHA
Telefon: 737851059, 702072257, 608135458
Email: archa-rk@seznam.cz
Dat.sch.: 4td8nr3
www.facebook.com/nemovitosti.archa
www.twitter.com/archa_life
www.instagram.com/nemovitosti_archa
www.archa-rk.cz
| Cena: | (za m2) 3 950,- Kč |
|---|
| Číslo podlaží v domě | 1 |
|---|---|
| Vlastní pozemek | 9 984 m² |
| Elektřina | 230 V |
| Připojení na internet | Jiné |
| Celková plocha | 9 984 m² |
| Plocha parcely | 9 984 m² |
| Druh pozemku | pro komerční výstavbu |
| Inženýrské sítě | Vodovod Kanalizace Elektřina |




