| Číslo zakázky: | 25040 | ![]() Karta nemovitosti |
|---|---|---|
| Typ zakázky: | prodej |
!!SLEVA!! Původní cena 4.950.000 Kč
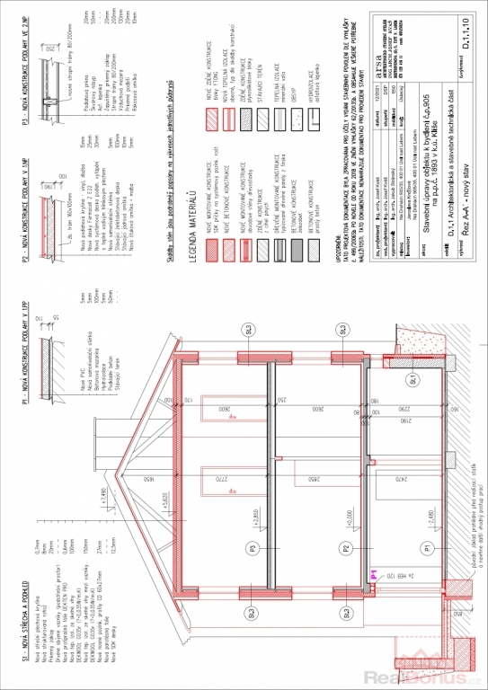
Nabízíme k prodeji rodinný dům v ústecké čtvrti Klíše, ve vilové zástavbě klidné ulice Na Drahách, jedná se o řadový dům o 3 podlažích.
Aktuálně je dům stavebně rozdělen na dvě bytové jednotky:
-samostatnou jednotku 2+1 o velikosti cca 62 m2 v 3. NP,
-samostatnou jednotku 2+1 o velikosti cca 62 m2 v 2. NP, která je propojena s ateliérem o velikosti cca 62 m2 v 1. NP.
Součástí stávajících jednotek v 2. NP a 3. NP je lodžie o velikosti cca 5 m2.
Dům je stavebně vyčištěný a připravený ke kompletní rekonstrukci. K dispozici projektová dokumentace pro stavební povolení.
V budoucím stavu je možné dům kompletně propojit a užívat jako jeden celek. Alternativně je možné vytvořit tři samostatné jednotky či mezonet a jednu samostatnou jednotku. Jednotka v 1. NP má stavební parametry ateliéru.
Rekonstrukce zateplení, opláštění, otvorových výplní, mezipatrových izolací a zdroje vytápění je vhodná pro čerpání podpory z programu Nová zelená úsporám.
Dům je napojen na vodovod, městskou kanalizaci a elektřinu.
Zahrada u domu je v dlouhodobém pronájmu od města Ústí nad Labem s možným budoucím odkupem po nabytí platnosti nového územního plánu v roce 2027. Parkování je možné před domem, případně dále v ulici, kde je dostatek volných parkovacích míst.
Veškerá občanská vybavenost je v docházkové vzdálenosti.
| Cena: | (za nemovitost) 4 450 000,- Kč |
|---|
| Počet podlaží objektu | 2 |
|---|---|
| Celková podlahová plocha | 180 m² |
| Druh objektu | dřevěná |
| Stav objektu | před rekonstrukcí |
| Energetická třída | G - Mimořádně nehospodárná |
| Počet podlaží pod zemí | 1 |
| Vlastní pozemek | 4 m² |
| Plocha sklepu | 57 m² |
| Umístění objektu | klidná část obce |
| Odpad | Městská kanalizace |
| Užitná plocha | 180 m² |
| Komunikace | asfaltová |
| Poloha objektu | řadový |
