| Číslo zakázky: | 232082 | ![]() Karta nemovitosti |
|---|---|---|
| Typ zakázky: | prodej |
Prodej domu se zastavěnou plochou 101 m2 na rovinatém pozemku o výměře 660 m2 v nově vzniklé čtvrti Zelené Doubravice. V blízkosti přírodní památka U Pohránovského rybníka, 5 min do centra Pardubic a 55 minut na Černý Most.
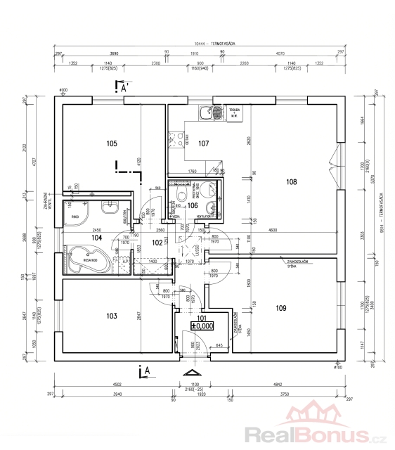
Srdcem domu je obývací pokoj spojený s jídelnou s přímým vstupem do kuchyně. Tento prostor je díky několika velkým oknům prosvětlený a vzdušný. Zároveň poskytuje přímé spojení s venkovní terasou a zahradou. V domě je dostatek úložného prostoru, kde využijete praktickou technickou místnost, nebo lze využít půdu, kam schováte například sezónní vybavení.
Mimořádně úsporný dům plný moderních technologií, kde tepelné čerpadlo vzduch - vzduch v zimě dům vyhřeje, v létě zase ochladí, a fotovoltaická elektrárna systém ON GRID s akumulací do zásobníku TUV: využívá sluneční energii pro ohřev užitkové vody v 200 litrovém zásobníku.
Dům nabízíme v provedení 4+kk a na klíč Vám stavbu dodá RD Rýmařov.
Pokud hledáte moderní rodinné bydlení s nízkými provozními náklady v lokalitě plné zeleně a nebo výhodnou investici, neváhejte a sjednejte si schůzku.
| Cena: |
(za nemovitost) 11 164 040,- Kč
(včetně provize a právních služeb)
|
|---|
| Druh objektu | dřevěná |
|---|---|
| Stav objektu | projekt |
| Energetická třída | B - Velmi úsporná |
| Vlastnictví | osobní |
| Vlastní pozemek | 660 m² |
| Vybavení | zahrada |
| Telekomunikace | Internet |
| Vybaveno | Nezařízeno |
| Topení | Ústřední - elektrické Klimatizace |
| Doprava | vlak dálnice silnice MHD autobus letiště |
| Elektřina | 230 V |
| Voda | dálkový vodovod |
| Odpad | Městská kanalizace |
| Občanská vybavenost | Škola Školka Zdravotnická zařízení Pošta Supermarket Kompletní síť obchodů a služeb Restaurace Místní úřad Kulturní zařízení Koupaliště |
| Počet míst k parkování | 2 |
| Zastavěná plocha | 101 m² |
| Plocha parcely | 660 m² |
| Ostatní | Plot |
| Užitná plocha | 83 m² |
| Poloha objektu | samostatný |
| Velikost bytů (3+1, 2+kk atd.) | 4+KK |
| K dispozici od | 31.03.2026 |




