| Číslo zakázky: | 649429 | ![]() Karta nemovitosti |
|---|---|---|
| Typ zakázky: | prodej |
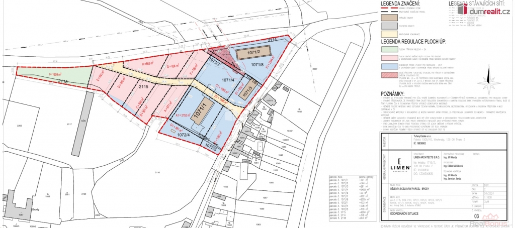
vč. provize a právního servisu, úvěr pro Vás zcela zdarma vyřídíme , stavební pozemky na komerci a bydlení celkem 20.000 m, možností dalšího rozšíření s Artézskou studnou o vydatnosti 19l/s vhodné pro potravinářskou výrobu - Pivovar, stáčírna vody a jiné nerušící provozy, dále stavební pozemky s rozdělením na celky cca 800 m nedaleko Žatce a Podbořan v obci Krásný Dvůr. Jedná se o pěkné rovinaté parcely. V územním plánu jsou již evidované jako stavební s možností výstavby staveb vesnického typu ( domy o jednom podlaží s půdním prostorem s možností bydlení a do 5 m výšky) a nerušící výrobu s již stojící halou cca 600 m, vilou se dvěma byty a garážemi. Na pozemku též Trafostanice. Parcely jsou dobře přístupné z asfaltové komunikace. Výborné na rekonstrukci a projekt výrobního areálu s možností čerpání dotací ministerstvo zemědělství, ministerstvo pro místní rozvoj, Czech tourism a Ústecký kraj a to např. na výrobu piva a například wellness s možností využití stávajících stavebních parcel na stavby pro ubytování hostů, či jiné gastro turistiky. Další informace u makléře. Doporučujeme! Ev. číslo: 648815. Energetický štítek: G
| Cena: |
na vyžádání v RK (vč. provize a právního servisu, úvěr pro Vás zcela zdarma vyřídíme)
|
|---|
| Počet podlaží objektu | 1 |
|---|---|
| Druh objektu | cihlová |
| Stav objektu | dobrý |
| Energetická třída | G - Mimořádně nehospodárná |
| Umístění objektu | nová zástavba |
| Vybaveno | Nezařízeno |
| Užitná plocha | 20 000 m² |
| Druh prostor | Výrobní |
