| Číslo zakázky: | 53313 | ![]() Karta nemovitosti |
|---|---|---|
| Typ zakázky: | prodej |
Prodej stavebního pozemku v Žabčicích na klidné ulici Tichá, katastrální území Žabčice, okres Brno ? venkov.
Pozemek parc.č. 1104/1 o výměře 972 m2 je určen k výstavbě rodinného domu.
Jedná se o rovinatý zasíťovaný pozemek obdélníkového tvaru s šířkou 18 m a délkou 54 m, který se nachází na hranici katastru obce Žabčice a Přísnotice a tvoří čtvrť, které se říká Malé Žabčice.
Všechny sítě (kanalizace, vodovod, elektřina, plyn, optika) jsou na hranici pozemku.
Je tedy možné využít občanskou vybavenost i dopravní spojení obou obcí.
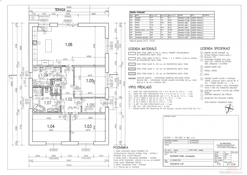
Na výstavbu rodinného domu je vypracovaná projektová dokumentace a bylo zažádáno o stavební povolení. Přízemní rodinný dům o velikosti 4+kk s užitnou plochou 138 m2 (zádveří, chodba, 3x ložnice, obývací pokoj s kuchyňským koutem, koupelna, WC s umyvadlem, technická místnost).
Projektová dokumentace je k nahlédnutí k dispozici a je součástí kupní ceny.
Občanská vybavenost v Žabčicích je na dobré úrovni a zahrnuje základní školu, mateřskou školu, samoobsluhu, poštu, knihovnu, dům s pečovatelskou službou, benzinku, sokolovnu, restaurace a sportoviště, koupaliště, což pokrývá většinu potřeb místních obyvatel.
Autem jsou Žabčice z Brna vzdálené cca 30 km (25 min).
Město Židlochovice se nachází cca 5 km (7 min) a město Pohořelice cca 8 km (9 min).
Dopravní spojení:
Žabčice ? vlak Brno,
Přísnotice ? autobus Žabčice ? přestup vlak Brno,
Žabčice, Přísnotice ? autobus Židlochovice, přestup autobus Brno.
Odměna zprostředkovatele není zahrnuta v uvedené ceně.
| Cena: | (za nemovitost) 6 200 000,- Kč |
|---|
| Plocha parcely | 972 m² |
|---|---|
| Druh pozemku | pro bydlení |




