| Číslo zakázky: | 652776 | ![]() Karta nemovitosti |
|---|---|---|
| Typ zakázky: | pronájem |
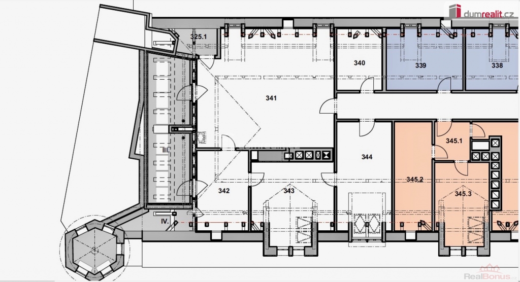
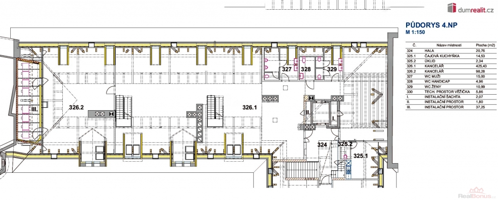
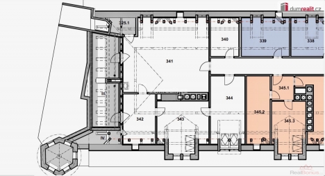
+popl. 60, Cena pronájmu je 68 500,-Kč + 21%DPH + poplatky 8 200,-Kč, Nabízíme Vám pronájem nově budované moderní reprezentativní kanceláře v prostoru historického prestižním objektu, klášteře sester Voršilek, přímo na ul. Národní, u zastávky tramvaje "Národní" navazující na Novou scénu Národního divadla. Jedná se v tuto chvíli o otevřený prostor, který se nachází ve 4.NP s výtahem. Jedná se o variabilní prostor, kdy dispozice kanceláří lze postavit podle Vašich představ, nebo mít velký open space, rozdělený dělícími stěnami a měnit dle aktuální potřeby. Jedná se o nejsvětlejší kancelářské prostory o celkové výměře 137m, ke kterým je i pro ostatní kanceláře na patře společná kuchyň s jídelnou, toalety, sprcha, technická místnost. Součástí služeb celého objektu je i recepce, s možností přenechání např. dokumentů, pošty atd., která se nachází v přízemí objektu. Náklady na vybudování jdou za pronajímatelem. Orientace kanceláře je primárně na jih do klidného klášterního parku, který není určen pro širokou veřejnost, tudíž klid a ticho zde jsou zaručeny. Prostory budou klimatizované, připojení na internet je samozřejmostí. Dokončení rekonstrukce je do cca 3 měsíců od podepsání rezervace na kanceláře. Ke kanceláři patří i věžička, jejíž výměra není započítána do výměr kanceláře, z této věžičky je i krásný výhled. V objektu je k dispozici možnost pronajmutí reprezentativních ozvučených sálů, na Vaše uzavřené konference, prezentace, jednání či večírky. Sály jsou dva, s kapacitou 100 a 30 osob. K pronájmu je možnost i parkovacího místa v ul.: Voršilská za cenu 3.500,-Kč/měsíc, nebo ve vnitrobloku za 6.000,-Kč+ DPH. V objektu se dále nachází dvě kavárny s občerstvením, velmi kvalitní velká restaurace se zahrádkou a pokud budete chtít mimo objekt, tak naproti je Kavárna Slavie. Zálohové služby za měsíc jsou ve výši 8 200,-Kč/m za předmětný prostor. Jedná se o poslední volné kanceláře v celém objektu. Ev. číslo: 652162. Energetický štítek: B (92 kWh/m2/rok).
| Cena: |
(za měsíc) 68 500,- Kč
(+popl. 60, Cena pronájmu je 68 500,-Kč + 21%DPH + poplatky 8 200,-Kč)
|
|---|
| Počet podlaží objektu | 4 |
|---|---|
| Druh objektu | cihlová |
| Stav objektu | ve výstavbě (hrubá stavba) |
| Energetická třída | B - Velmi úsporná |
| Umístění objektu | centrum |
| Vybaveno | Nezařízeno |
| Počet míst k parkování | 6 |
| Užitná plocha | 137 m² |
| Druh prostor | Kanceláře |
