| Číslo zakázky: | 972073 | ![]() Karta nemovitosti |
|---|---|---|
| Typ zakázky: | prodej |
Prodej vícegeneračního domu s nadstandardní dispozicí 7+kk o celkové obytné ploše 235m2.
Jedná se o čtyř podlažní rodinný dům, kolaudovaný v roce 1992. V přízemí domu se nachází prostorná vstupní hala, v zadní části je sklep a technické zázemí, koupelna s prádelnou a plynovým kotlem, dále samostatný pokoj, plocha 25,3m2 (hostinská místnost s vlastním vstupem, sprchou, toaletou a vlastní terasou), tato jednotka může sloužit i k nezávislému pronájmu.
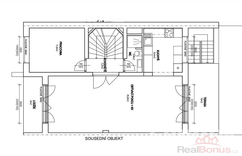
Ve 2 NP. se nachází prostorný a světlý obývací pokoj s jídelním koutem, kuchyní, která je vybavenou kuchyňskou linkou, výstup na balkon, terasu 12m2 a zahradu, která má plochu 121m2, dále jedna samostatná ložnice, koupelna se sprchou a wc.
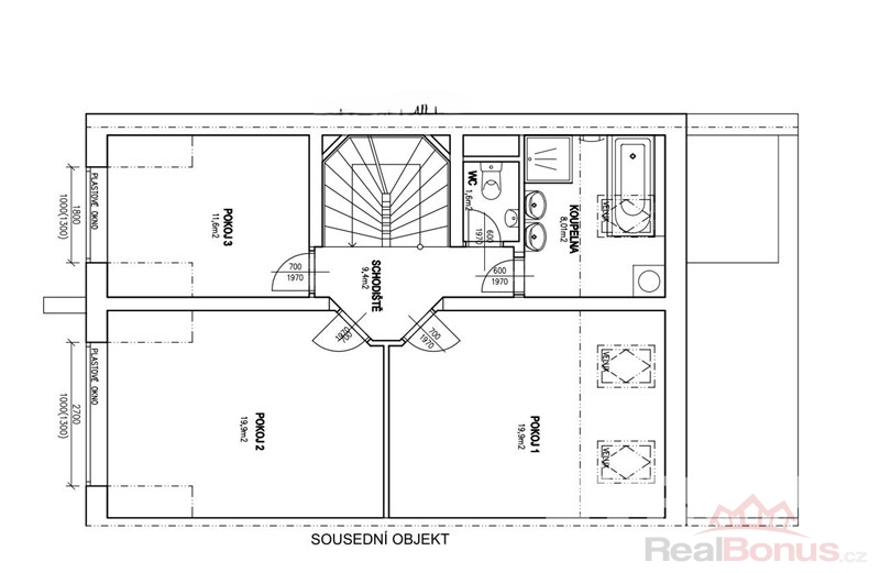
Ve 3 NP, jsou tři samostatné ložnice a koupelna s vanou a sprchou, v podkroví je poslední větší ložnice 28,3m2. Dům má plastová okna, žaluzie, na podlahách koberce. Parkování je na ulici před domem.
Obrovskou výhodou je dispozice domu, která nabízí bydlení početné rodině, také lokalita, vybavenost obce, školy, školky, perfektní dopravní dostupnost, plánovaná linka metra D bude cca 8min. pěšky od domu. Prohlídka možná po dohodě s makléřem.
| Cena: |
(za nemovitost) 20 980 000,- Kč
(včetně provize)
|
|---|
| Počet podlaží objektu | 3 |
|---|---|
| Celková podlahová plocha | 235 m² |
| Druh objektu | cihlová |
| Stav objektu | po rekonstrukci |
| Energetická třída | D - Méně úsporná |
| Vlastnictví | osobní |
| Vlastní pozemek | 249 m² |
| Plocha balkonu | 5 m² |
| Lodžie | 5 m² |
| Plocha teras | 12 m² |
| Plocha sklepu | 5 m² |
| Vybavení | balkon |
| Telekomunikace | Telefon |
| Vybaveno | Možno zařídit |
| Odpad | Městská kanalizace |
| Plyn | Zaveden |
| Orientace | Sever |
| Počet míst k parkování | 2 |
| Připojení na internet | ADSL |
| Zastavěná plocha | 128 m² |
| Užitná plocha | 235 m² |
| Počet bytů - celkem | 1 |
| Poloha objektu | řadový |
