| Číslo zakázky: | ZR1213 | ![]() Karta nemovitosti |
|---|---|---|
| Typ zakázky: | prodej |
Exkluzivně nabízíme prodej dvougeneračního třípodlažního řadového rodinného domu Praha 4 Krč, ulice Perlitová.
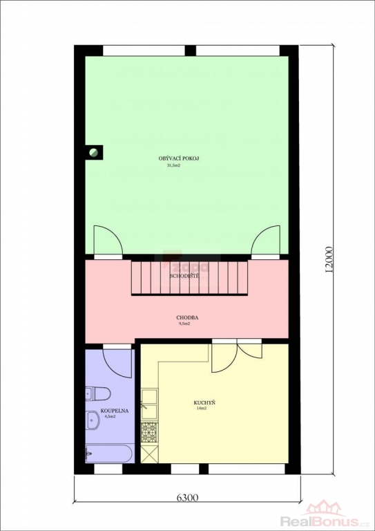
Podlahová plocha domu činí 221 m2, plocha rovinatého pozemku 229 m2.
V prvním podlaží je k dispozici bytová jednotka 1+kk s terasou a vstupem na zahradu, garáž a technická místnost.
Druhé a třetí podlaží tvoří bytová jednotka 4+1 se dvěma koupelnami a lodžií.
Terasa a zahrada jsou orientovány na jihovýchod, do klidné zeleně, vstup do domu na severozápad.
Dům, kolaudovaný v roce 1992, prošel částečnou rekonstrukcí - nové rozvody vody, nová eurookna.
Topení a ohřev vody zajišťuje plynový etážový kotel.
Třída energetické náročnosti budovy je C - úsporná.
Ulice Perlitová je jednosměrná, velmi klidná.
Nemovitost je v blízkosti metra Pankrác a Budějovická, těsně vedla sportovního areálu SK Oaza.
V okolí je veškerá občanská vybavenost - školy, školka, poliklinika, obchody.
Dům je možné využít jak k bydlení, tak i k podnikání.
Prohlídky jsou možné ihned, cena je včetně provize.
Koupi lze financovat prostřednictvím hypotečního úvěru, který Vám pomůžeme vyřídit.
| Cena: |
(za nemovitost) 23 950 000,- Kč
(včetně provize)
|
|---|
| Číslo podlaží v domě | 1 |
|---|---|
| Počet podlaží objektu | 3 |
| Celková podlahová plocha | 205 m² |
| Druh objektu | panelová |
| Stav objektu | dobrý |
| Energetická třída | C - Úsporná |
| Vlastní pozemek | 229 m² |
| Vybavení | lodžie terasa |
| Umístění objektu | klidná část obce |
| Vybaveno | Částečně zařízeno |
| Topení | Ústřední - plynové |
| Elektřina | 230 V |
| Plyn | Zaveden |
| Připojení na internet | Jiné |
| Zastavěná plocha | 77 m² |
| Plocha parcely | 229 m² |
| Užitná plocha | 205 m² |
| Plocha zahrady | 122 m² |
| Inženýrské sítě | Vodovod Kanalizace Plyn Elektřina |
| Druh stavby | rodinný dům, rekreační chalupa, rekreační pozemek |
| Poloha objektu | řadový |
