| Číslo zakázky: | 385 | ![]() Karta nemovitosti |
|---|---|---|
| Typ zakázky: | prodej |
Pokud toužíte po místě, které spojuje klid venkova, jedinečnou atmosféru jižní Moravy a zároveň nabízí možnost zajímavého zhodnocení, tato nabídka by vás mohla zaujmout.
K prodeji je tradiční zděný rodinný dům s dispozicí 2+1 (možno 3+kk), doplněný o dvůr, hospodářské zázemí a další užitečné prostory. Nemovitost se nachází v obci Nová Ves u Oslavan, v lokalitě známé pohodovou atmosférou a dobrou dostupností služeb i přírody.
Základní informace:
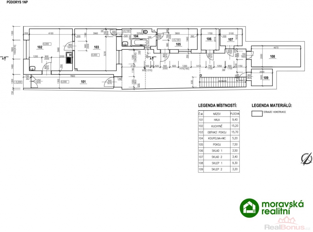
- dispozice: 2+1 (možno 3+kk)
- užitná plocha: 53 m2
- plocha sklepů a skladů: 19,4 m2
- celková plocha pozemků: 383 m2
- stav: dobrý, vhodný k modernizaci
- volné: ihned
Technické údaje:
- napojení na obecní vodovod, elektřinu a plyn
- odpady: jímka ve dvoře
- kanalizace: před domem
- vytápění: plynová topidla WAW
- ohřev vody: elektrický bojler
- energetická náročnost: třída G (průkaz je ve zpracování)
Dispozice a vybavení:
Dům disponuje třemi obytnými místnostmi, kuchyňským koutem a zázemím. Za domem se nachází dvůr se vstupem do čtyř sklepů (skladů) a schodištěm vedoucím na zahradu.
Součástí nemovitosti je také zahrada o přibližné výměře 268 m2, která poskytuje dostatek prostoru pro relaxaci.
Nemovitost nabízí široké možnosti využití ať už jako útulné zázemí pro víkendové pobyty, pohodlné bydlení po celý rok nebo jako perspektivní investici s potenciálem dalšího zhodnocení.
V současné době probíhá proces legalizace stavby umístěné ve dvoře.
Neváhejte nás kontaktovat pro sjednání prohlídky. Financování i kompletní právní servis zajistíme zdarma.
Uvedené údaje mají informativní charakter a nepředstavují nabídku ve smyslu §1731 a §1732 občanského zákoníku ani veřejný příslib dle §1733 občanského zákoníku.
| Cena: |
(za nemovitost) 3 181 500,- Kč
(Cena je uvedena vč. provize RK)
|
|---|
| Číslo podlaží v domě | 1 |
|---|---|
| Počet podlaží objektu | 1 |
| Celková podlahová plocha | 53 m² |
| Druh objektu | smíšená |
| Stav objektu | dobrý |
| Energetická třída | G - Mimořádně nehospodárná |
| Vlastní pozemek | 383 m² |
| Vybavení | sklep |
| Umístění objektu | klidná část obce |
| Vybaveno | Částečně zařízeno |
| Topení | Lokální - plynové |
| Elektřina | 230 V |
| Zastavěná plocha | 100 m² |
| Plocha parcely | 383 m² |
| Užitná plocha | 53 m² |
| Plocha zahrady | 250 m² |
| Inženýrské sítě | Elektřina |
| Druh stavby | rodinný dům, rekreační chalupa, rekreační pozemek |
| Poloha objektu | řadový |
