| Číslo zakázky: | 2024015 | ![]() Karta nemovitosti |
|---|---|---|
| Typ zakázky: | prodej |
Lokalita: ŠUMAVA, KAŠPERSKÉ HORY nejvýše položené gotické město v Čechách - brána do Šumavského národního parku v nadm.výšce 750 m n.m. s kompletní infrastrukturou pro malebné a pohodové bydlení i rekreaci na Šumavě. Hotely, restaurace, Šumavské bylinkové lázně. Pro sportovce je k dispozici nová moderní víceúčelová hala, Skiareál s možností večerního lyžování a Šumavský národní park pro cykloturistiku i milovníky bílé stopy.
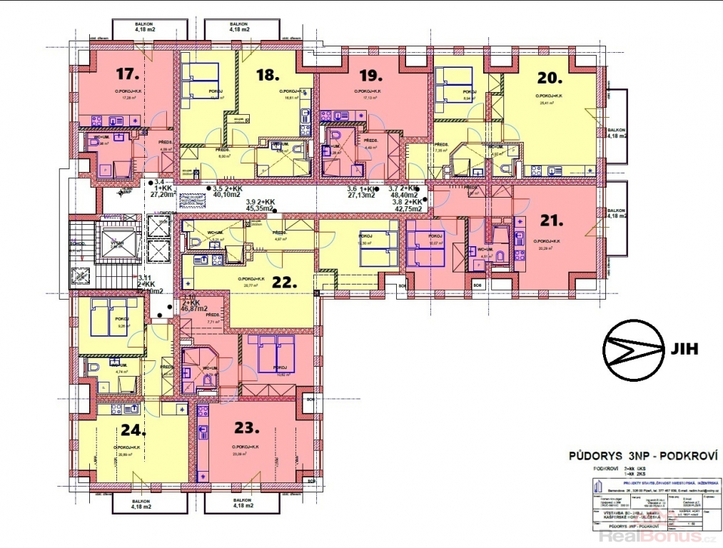
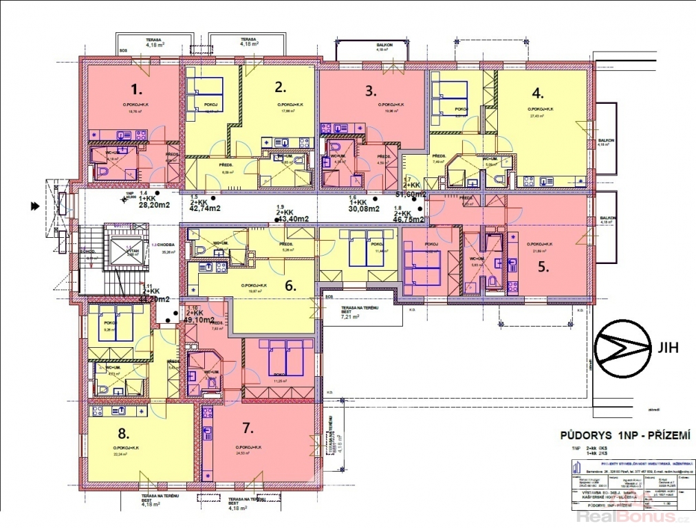
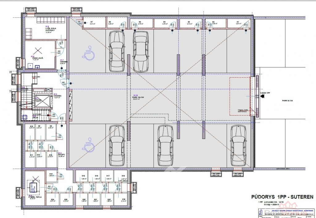
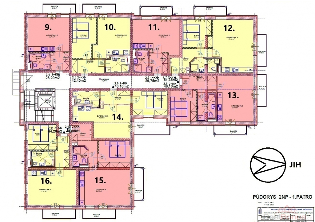
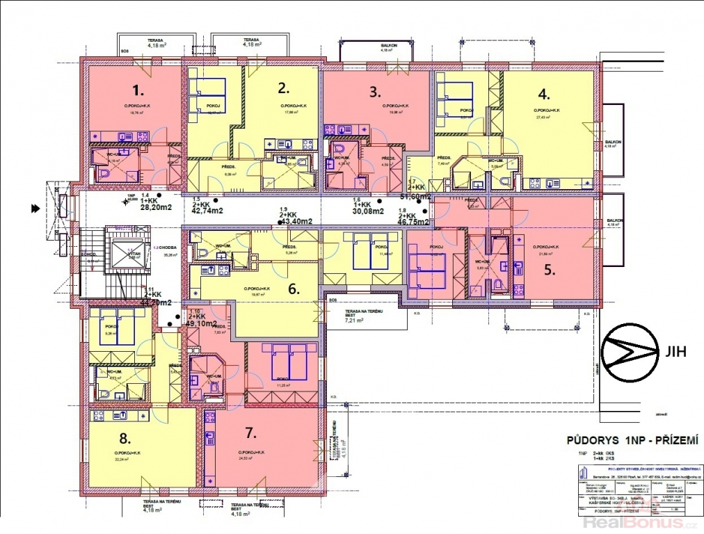
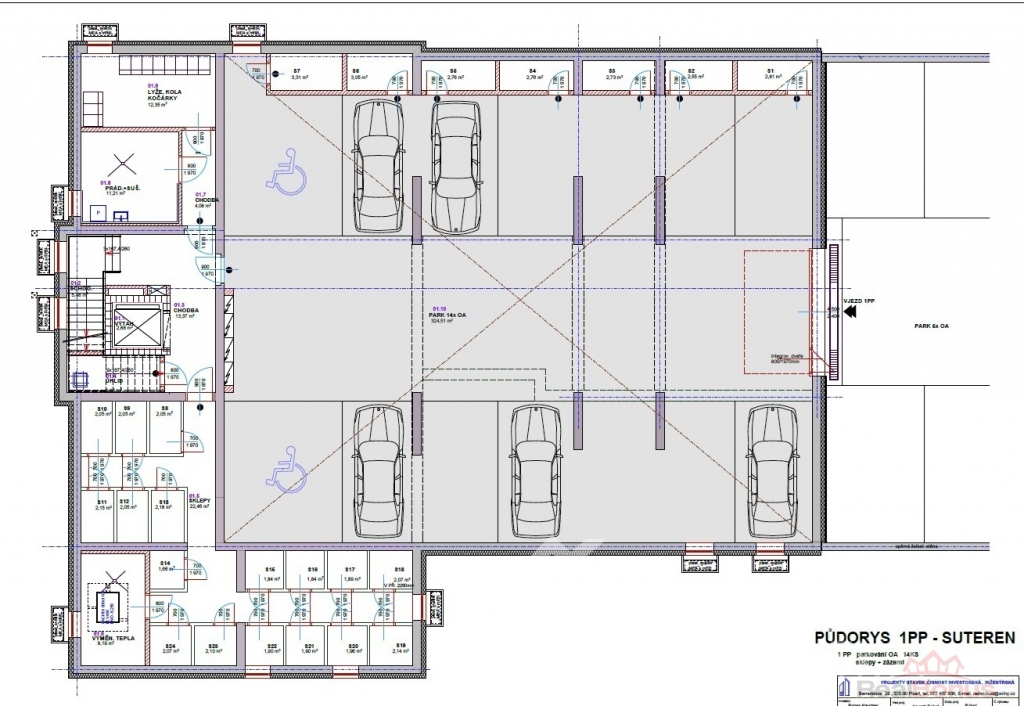
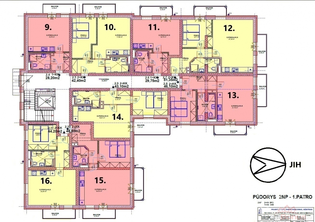
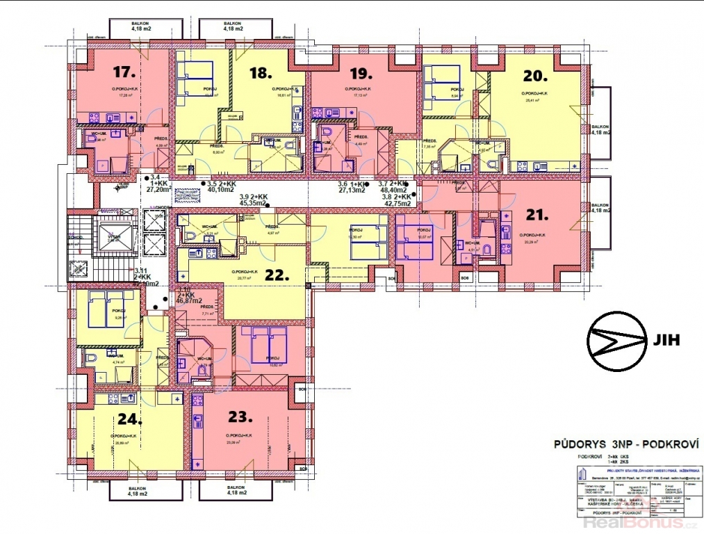
Komfortní apartmány byty do osobního vlastnictví v klasicky zděném domě o 24 bytech vybavené výtahem a to již od suterénu. V bytovém domě bude 6 bytů 1+kk a 18 bytů 2+kk. Realizovány budou podle kvalitního autorského projektu arch. Radima Hucla a dokončeny na jaře 2026. V krásné poloze na jižně orientovaném pozemku, cca 4 min. pěší chůze od náměstí. Součástí této dobré investice je sklep a koupě venkovního parkovacího stání ke každému bytu nebo vnitřního krytého parkovacího stání. Dobře prosvětlené byty s krásným výhledem budou vybaveny kvalitními standardy, většina z nich mají balkóny nebo předzahrádku. Připojení na městskou výtopnu biomasou, samostatné měření tepla a spotřeby elektřiny v každém bytu. Standardy: podrobné info zašleme na vyžádání. CENY: info v realitní kanceláři u makléřky projektu.
| Cena: |
na vyžádání v RK (Info o ceně u makléřky projektu)
|
|---|
| Dispozice bytu | 2+kk |
|---|---|
| Číslo podlaží v domě | 2 |
| Počet podlaží objektu | 3 |
| Druh objektu | cihlová |
| Stav objektu | ve výstavbě (hrubá stavba) |
| Energetická třída | B - Velmi úsporná |
| Vlastnictví | osobní |
| Počet podlaží pod zemí | 1 |
| Plocha balkonu | 8 m² |
| Plocha sklepu | 2 m² |
| Vybavení | balkon |
| Umístění objektu | klidná část obce |
| Odpad | Městská kanalizace |
| Počet míst k parkování | 24 |
| Užitná plocha | 51 m² |
| Charakter okolní zástavby | obytná |




