| Číslo zakázky: | 05765 | ![]() Karta nemovitosti |
|---|---|---|
| Typ zakázky: | prodej |
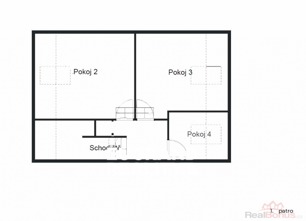
Nabízíme k prodeji prostorný a světlý rodinný dům o dispozici 6+kk, který se nachází v klidné části města Chrudim.
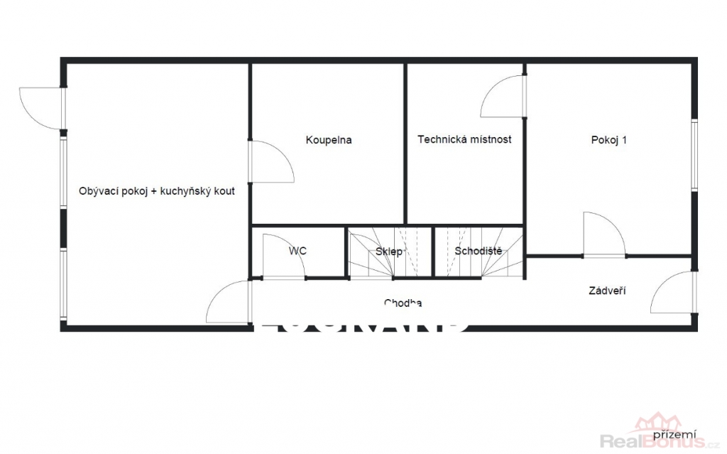
RD je situován na východní hranici pozemku o celkové velikosti 528 m2. Jedná se o částečně podsklepený, řadový dům s jedním nadzemním podlažím a obytným podkrovím. Objekt je připojen na veřejné rozvody ? vodovod, kanalizace, plyn. Současně disponuje i studnou. Dům je vytápěn plynovým kotlem, který se nachází v technické místnosti (viz plánek přízemí - fotografie).
Dominantní místností domu je obývací pokoj s kuchyňským koutem, z kterého vedou dveře přímo na slunnou terasu, která nabízí ideální zázemí pro grilování či posezení s přáteli.
Dům je ideální volbou pro ty, kteří hledají prostor pro realizaci domova dle vlastních představ. Inzerát obsahuje i několik vizualizací, které slouží jako inspirace pro možnou proměnu prostorů.
V okolí naleznete veškerou občanskou vybavenost, výborná dostupnost do centra města i nedalekých Pardubic. (20 minut jízdy autem)
Nemovitost lze financovat hypotečním úvěrem, s kterým Vám rádi pomůžeme.
Více informací u makléře. Budeme se těšit na osobní setkání.
| Cena: |
(za nemovitost) 6 699 000,- Kč
(včetně provize, včetně právního servisu)
|
|---|
| Počet podlaží objektu | 1 |
|---|---|
| Druh objektu | cihlová |
| Stav objektu | dobrý |
| Energetická třída | D - Méně úsporná |
| Plocha sklepu | 11 m² |
| Vybavení | terasa sklep |
| Umístění objektu | centrum |
| Voda | dálkový vodovod |
| Zastavěná plocha | 162 m² |
| Plocha parcely | 528 m² |
| Užitná plocha | 162 m² |
| Inženýrské sítě | Vodovod |
| Poloha objektu | řadový |




