| Číslo zakázky: | 235319 | ![]() Karta nemovitosti |
|---|---|---|
| Typ zakázky: | prodej |
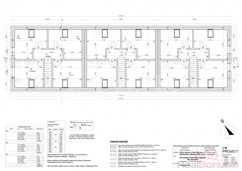
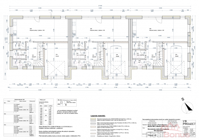
Naše společnost vám zprostředkuje prodej patrového domu 4+kk s užitnou plochou 113 m2 na rovinatém pozemku o výměře 198 m2, na pěkném a klidném místě v obci Medlešice. Nově vznikající čtvrť " Medlešické Domy" vám poskytne příjemné bydlení pro vícečlennou rodinu v krásné přírodě. Novostavba zděného domu s garáží na klíč je výborně dispozičně řešená. Přízemí slouží převážně jako společný prostor pro celou rodinu. Dispozice: obývací pokoj s kuchyňskou částí a moderní kuchyňskou linkou, praktická spíš, technická místnost, zádveří, koupelna se sprchovým koutem, Wc a garáž. V prvním patře domu jsou dva samostatné pokoje, prostorná ložnice, koupelna s rohovou vanou a Wc. Vytápění domu je podlahové a je zajištěno tepelným čerpadlem, které Vám bude ohřívat vodu a v letních měsících Vám dům příjemně ochladí. Pokud hledáte moderní bydlení s nízkými provozními náklady v lokalitě plné zeleně, a perfektní dostupností do okolních měst (Pardubice 7 km, Chrudim 4 km) neváhejte a sjednejte si schůzku. Financování Vám vyřídíme v rámci služeb.
| Cena: |
(za nemovitost) 7 899 000,- Kč
(včetně provize a právních služeb)
|
|---|
| Druh objektu | cihlová |
|---|---|
| Stav objektu | ve výstavbě (hrubá stavba) |
| Energetická třída | B - Velmi úsporná |
| Vlastní pozemek | 198 m² |
| Vybavení | zahrada |
| Umístění objektu | klidná část obce |
| Vybaveno | Nezařízeno |
| Topení | Lokální - elektrické Klimatizace |
| Elektřina | 230 V |
| Voda | dálkový vodovod |
| Odpad | Městská kanalizace |
| Plyn | Není |
| Rok kolaudace | 2 027 |
| Parkování | garáž |
| Zastavěná plocha | 86 m² |
| Plocha parcely | 198 m² |
| Ostatní | Plot Bezbariérový přístup Garáž |
| Užitná plocha | 113 m² |
| Komunikace | dlážděná |
| Druh pozemku | trvalý travní porost |
| Poloha objektu | v bloku |
| K dispozici od | 23.04.2026 |




