| Číslo zakázky: | 2026-157 | ![]() Karta nemovitosti |
|---|---|---|
| Typ zakázky: | prodej |
DEVELOPERSKÝ PROJEKT S OKAMŽITÝM STARTEM TRUTNOV / VÝHLED NA KRKONOŠE
Hledáte projekt, kde můžete začít stavět bez zdržení a zároveň vydělat na dalším rozvoji?
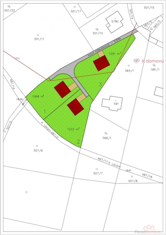
V Trutnově, v ulici Nad Poříčskou, nabízíme soubor pozemků o celkové výměře 10 284 m, určený pro výstavbu až 9 rodinných domů. PROJEKT, KTERÝ VÁM UŠETŘÍ ČAS I PENÍZE.
Na rozdíl od běžných pozemků zde nečekáte na infrastrukturu ani složité přípravy.
vybudovaná příjezdová komunikace včetně obratiště
elektřina a voda u hranice pozemků
zhutněné plochy připravené pro základové desky
kompletně vyřešený přístup
můžete začít stavět prakticky okamžitě
DVĚ FÁZE PROJEKTU = DVĚ PŘÍLEŽITOSTI /OKAMŽITÁ REALIZACE
Pozemky 563/1, 563/2, 563/3, 563/4 jsou připraveny k výstavbě rodinných domů. Pozemky 507/6 a 562/1 představují rezervu pro další výstavbu nebo investiční zhodnocení.
Ideální pro developera, který myslí dopředu. Vyděláváte nejen dnes, ale i v budoucnu.
LOKALITA, KTERÁ PRODÁVÁ SAMA
nádherný výhled na Krkonoše
ideální kombinace bydlení a rekreace
okolní nová rodinná výstavba
lyžování v Pec pod Sněžkou do 30 minut
klidné prostředí v přírodě
TECHNICKÉ INFORMACE
celková plocha: 10 284 m
koeficient zastavěnosti: až 40 %
elektřina u hranice pozemku
voda u hranice pozemku
kanalizace - nutnost vlastní ČOV
pod komunikací odvodňovací kanál
PRO KOHO JE PROJEKT IDEÁLNÍ
developer pro realizaci menší rezidenční výstavby
investor hledající připravený projekt
kombinace výstavby a dlouhodobého zhodnocení
HLAVNÍ VÝHODA
Začínáte stavět hned a zároveň kupujete budoucnost.
Tady nekupujete pozemek. Kupujete projekt, kde můžete začít stavět bez čekání a zároveň získáváte prostor pro další rozvoj.
Podobně připravených projektů je v Trutnově minimum.
Pokud hledáte smysluplnou investici s okamžitým potenciálem, ráda vám projekt osobně představím.
Uvedené výměry jsou orientační. V případě více zájemců bude nemovitost prodána nejlepší nabídce a majitel si vyhrazuje právo vybrat kupujícího na základě jim zvolených kritérií. Veškeré zveřejněné údaje obsažené v tomto inzerátu mají pouze informativní charakter a nejsou nabídkou ve smyslu § 1731 nebo § 1732 občanského zákoníku, ani se nejedná o veřejný příslib dle § 1733 občanského zákoníku.
| Cena: |
(za nemovitost) 21 101 000,- Kč
(o ceně je možné jednat)
|
|---|
| Stav objektu | velmi dobrý |
|---|---|
| Vlastní pozemek | 10 284 m² |
| Umístění objektu | klidná část obce |
| Druh pozemku | pro bydlení |




