| Číslo zakázky: | 2026-159 | ![]() Karta nemovitosti |
|---|---|---|
| Typ zakázky: | prodej |
MENŠÍ DEVELOPERSKÝ PROJEKT 3 DOMY TRUTNOV
Hledáte projekt, kde můžete začít stavět bez zdržení a zbytečných investic do přípravy?
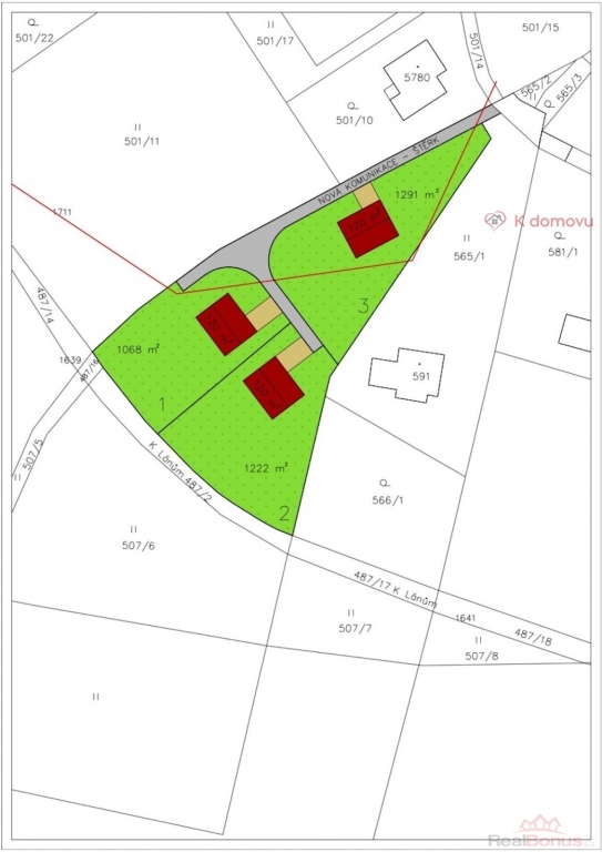
V Trutnově, v ulici Nad Poříčskou, nabízíme soubor 4 stavebních pozemků parc.č.563/1, 563/2, 563/3, 563/4, které jsou připraveny pro realizaci výstavby 3 rodinných domů.
HLAVNÍ BENEFIT
možnost okamžité výstavby až 3 rodinných domů
CO JE JIŽ PŘIPRAVENO
vybudovaná příjezdová komunikace
zajištěný přístup k jednotlivým parcelám
elektřina a voda u hranice pozemků
připravená a zhutněná plocha pro základové desky
projekt vám šetří čas i náklady na přípravu
PARAMETRY
celková výměra: cca 3 982 m
koeficient zastavěnosti: až 40 %
možnost realizace až 3 samostatných rodinných domů
kanalizace: nutnost řešit vlastní ČOV
LOKALITA
výhled na Krkonoše
okolní nová rodinná výstavba
nádherná příroda
klidná část Trutnova
lyžování v Peci pod Sněžkou do 30 minut
PRO KOHO JE PROJEKT IDEÁLNÍ
menší developer
stavební firma realizující vlastní projekty
investor hledající rychlý obrat
neřešíte přípravu
začínáte stavět
Podobně připravené projekty v této lokalitě jsou výjimečné. Ráda vám sdělím více informací a představím možnosti realizace.
Uvedené výměry jsou orientační. V případě více zájemců bude nemovitost prodána nejlepší nabídce a majitel si vyhrazuje právo vybrat kupujícího na základě jim zvolených kritérií. Veškeré zveřejněné údaje obsažené v tomto inzerátu mají pouze informativní charakter a nejsou nabídkou ve smyslu § 1731 nebo § 1732 občanského zákoníku, ani se nejedná o veřejný příslib dle § 1733 občanského zákoníku.
| Cena: | (za nemovitost) 13 538 800,- Kč |
|---|
| Stav objektu | velmi dobrý |
|---|---|
| Vlastní pozemek | 3 982 m² |
| Umístění objektu | klidná část obce |
| Druh pozemku | pro bydlení |
| Charakter okolní zástavby | obytná |




