| Číslo zakázky: | 2457 | ![]() Karta nemovitosti |
|---|---|---|
| Typ zakázky: | prodej |
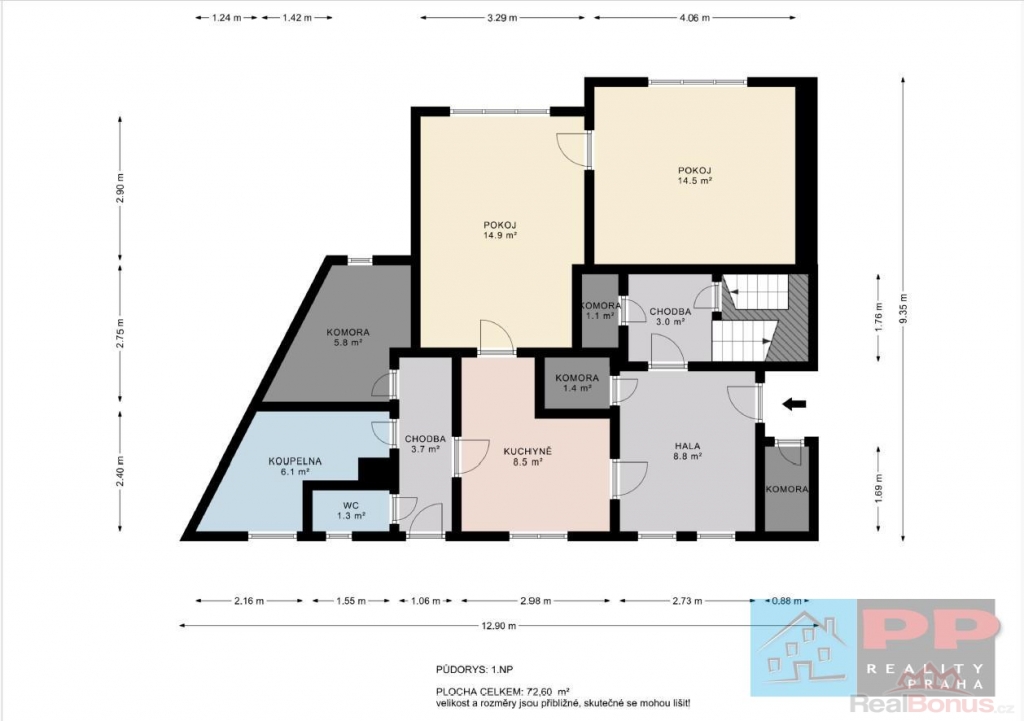
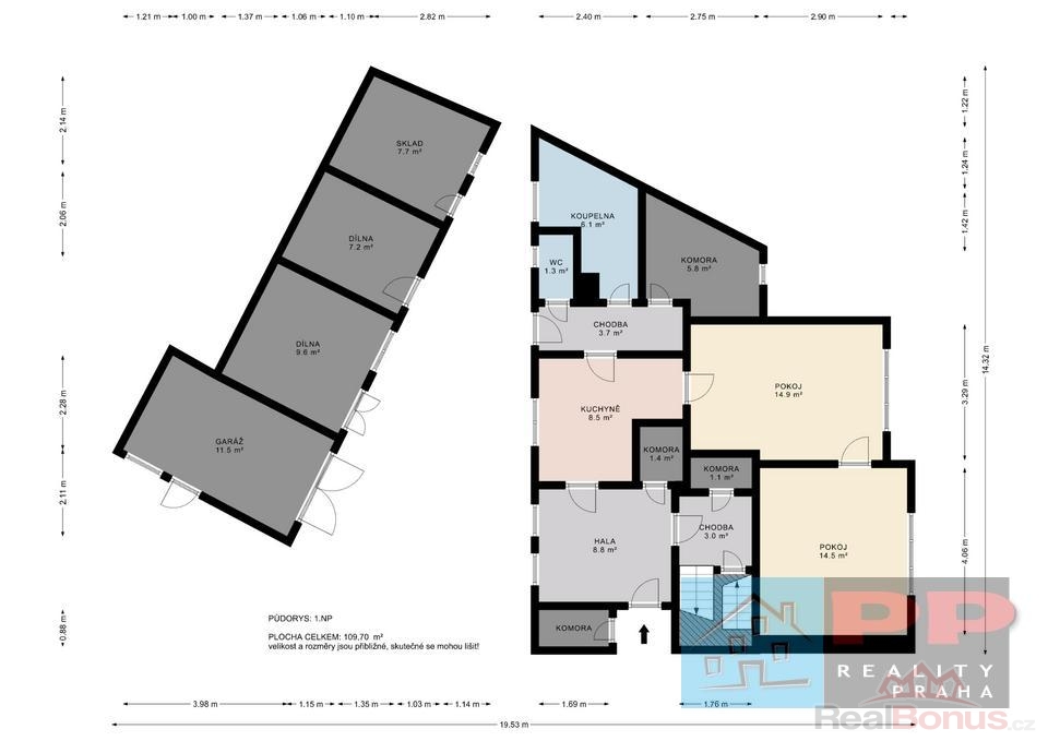
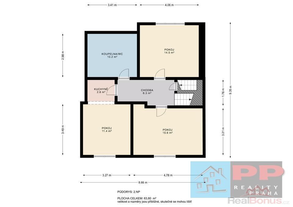
P090301. Ve výhradním zastoupení nabízím k prodeji dvougenerační rodinný dům s velkou zahradou. Dům je rozdělen na dvě bytové jednotky: v přízemí je samostatný 2+1 (72m2) a v horním patře je 3+kk (63m2). V každém podlaží je vlastní kuchyň, koupelna a WC. Dole je malý sklep. Na dvoře je kopaná studna. Dům se nachází na okraji obce, a tak zde budete mít pouze jednoho souseda. Velká zahrada má potenciál pro další výstavbu.
Na pozemku se nachází hospodářská budova (dílna, sklady), letní pergola a jezírko s rybami. Na zahradě jsou ovocné stromy a najdete zde dostatek místa pro zahradničení. Za jasných dnů lze odsud pozorovat úchvatné západy slunce.
Samotný dům je starší, ale v dobrém technickém stavu, takže se do něj můžete ihned nastěhovat. Všude jsou plastová okna. Elektrické rozvody jsou kompletně nové kvůli výkonnému tepelnému čerpadlu, kterým se dům vytápí. Na střeše se nachází pět solárních panelů, zapojených do ohřevu teplé vody. V každém bytě je elektrický bojler. Dům je napojen na obecní vodovod a kanalizaci. Plyn v obci není.
Krchleby se nachází 6 km severně od Nymburka směrem na Mladou Boleslav. Jsou zde mateřské i základní školy, obecní úřad, dětské a fotbalové hřiště. Na pražský Černý Most se dostanete během 40 minut po D10 přes Benátky nad Jizerou nebo po D11 od Poděbrad.
V blízkém okolí jsou lesy, rybníky a známý Loučenský zámek, které můžete nejlépe prozkoumat během výletů na kole.
V případě zájmu o prohlídku mě neváhejte kontaktovat, rád se s vámi domluvím na osobní prohlídce. S případným hypotečním financováním vám pomůže naše šikovná úvěrová specialistka. Těším se na setkání v Krchlebech!
| Cena: |
(za nemovitost) 7 950 000,- Kč
(včetně provize)
|
|---|
| Číslo podlaží v domě | 1 |
|---|---|
| Počet podlaží objektu | 1 |
| Druh objektu | cihlová |
| Stav objektu | dobrý |
| Energetická třída | D - Méně úsporná |
| Vlastní pozemek | 1 607 m² |
| Umístění objektu | centrum |
| Vybaveno | Částečně zařízeno |
| Topení | Jiné |
| Zastavěná plocha | 388 m² |
| Plocha parcely | 1 607 m² |
| Plocha zahrady | 1 219 m² |
| Inženýrské sítě | Vodovod Kanalizace |
| Druh stavby | rodinný dům, rekreační chalupa, rekreační pozemek |
| Poloha objektu | samostatný |




