| Číslo zakázky: | XA-344 | ![]() Karta nemovitosti |
|---|---|---|
| Typ zakázky: | pronájem |
Dobrý den, hledáte moderní byt v centru města s výtahem a balkónem? Nemůžete najít ten pravý, kompletně zrekonstruovaný, moderní? Už nemusíte hledat, právě jste ho našli.
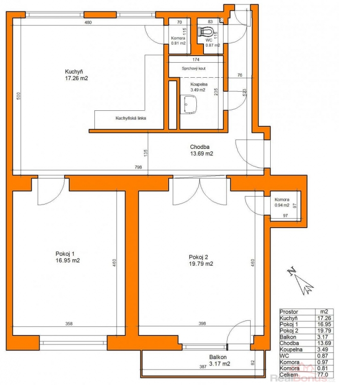
Od 1.6.2026 se nám uvolní k pronájmu byt po rekonstrukci, kdy z původní dispozice 3+1 vznikla vzdušnější 3+kk o celkové výměře 77 m2. Není mnoho cihlových bytů ve starší zástavbě, které by měly balkón a také byly v domě s výtahem. Tento byt má obojí.
Lokace bytu je naprosto ideální, málo frekventovaná ulice Sladkovského v dosahu parku, ale zároveň městského života. Parkování v ulici, případně v nedalekých parkovacích domech. Byt se nachází v posledním 5. podlaží, takže Vás nikdo nad Vámi nebude rušit a zároveň budete mít příjemný rozhled do okolí.
Byt se pronajímá včetně vybavené kuchyňské linky s potřebnými spotřebiči (varné desky, trouby, odsavače par, myčky nádobí, ledničky, pračky se sušičkou).
Výše nájmu tohoto komfortního bytu vychází na 19.500 Kč + 5.000 Kč zálohy na energie, peněžitá jistota (vratná kauce) činí 39.000 Kč a provize RK je ve výši 19.000 Kč. A ještě jednou zmiňuji, byt je volný od 1.6.2026.
Děkuji za pozornost. Václav Růžička, realitní specialista.
Pronajímatel si vyhrazuje právo vybrat nájemce na základě jím zvolených kritérií.
| Cena: |
(za měsíc) 19 500,- Kč
(+ 5.000 Kč zálohy na energie a služby)
|
|---|
| Dispozice bytu | 3+kk |
|---|---|
| Číslo podlaží v domě | 5 |
| Počet podlaží objektu | 5 |
| Celková podlahová plocha | 77 m² |
| Druh objektu | cihlová |
| Stav objektu | dobrý |
| Vlastnictví | osobní |
| Druh bytu | v nájemním domě (činžovním) |
| Počet podlaží pod zemí | 1 |
| Vybavení | balkon výtah |
| Umístění objektu | centrum |
| Vybaveno | Částečně zařízeno |
| Topení | Ústřední - dálkové |
| Celková plocha | 77 m² |
| Užitná plocha | 77 m² |
| Druh stavby | budova/y, hala/y |
| Poloha objektu | v bloku |




