| Číslo zakázky: | 25299 | ![]() Karta nemovitosti |
|---|---|---|
| Typ zakázky: | prodej |
Nabízíme k prodeji novostavbu řadového rodinného domu o dispozici 4+kk v obci Ovčáry, která je aktuálně ve výstavbě s plánovaným dokončením 03/2027. Jedná se o moderní bydlení, kde bude vše zcela nové, navržené s důrazem na funkčnost, kvalitu a současný design, zasazené do klidné a příjemné lokality.
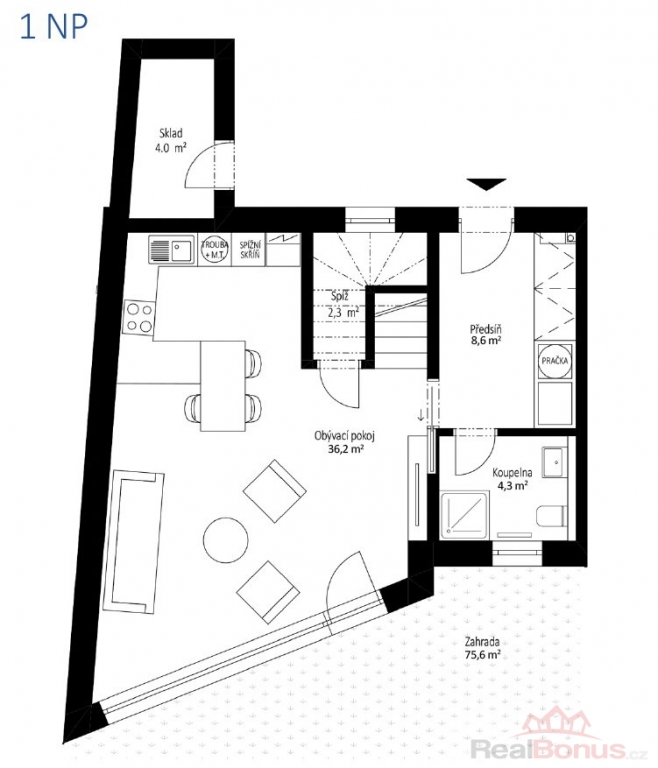
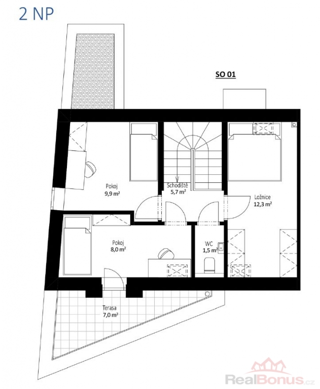
Dům je součástí tří samostatných řadových rodinných domů, přičemž každý z nich stojí na vlastním pozemku a má vlastní přípojky elektřiny, vodovodu i kanalizace. Nabízen je pouze jeden z těchto domů, což z něj činí zajímavou a omezenou příležitost. Dispozice 4+kk nabízí ideální rozložení prostoru pro rodinné bydlení, kdy v přízemí dominuje prostorný obývací pokoj s kuchyňským koutem o velikosti 36,2 m2 s přímým vstupem na zahradu, dále zde najdete předsíň, koupelnu, praktickou spíž a samostatný sklad. V patře se nachází ložnice, dva další pokoje, samostatné WC a vstup na terasu.
Celková užitná plocha domu činí 92,8 m2, podlahová plocha 99,2 m2, k domu náleží zahrada o velikosti 75,6 m2 a terasa 7,0 m2. Celková plocha pozemku je 192 m2. Samozřejmostí jsou dvě parkovací stání přímo u domu.
Dům bude dokončen ve vysokém standardu, který zahrnuje například cihlové pásky Klinker na fasádě, falcovanou střešní krytinu v antracitové barvě, moderní silikonovou omítku a okna s izolačním trojsklem. Interiér nabídne kvalitní vinylové podlahy značky Karndean, interiérové dveře Sapeli, plastová okna Vekra a moderně řešenou koupelnu s velkoformátovými obklady, sprchovým koutem, závěsným WC a kvalitní sanitou. Vytápění zajištěno tepelným čerpadlem a podlahovým topením.
Obec Ovčáry jsou ideálním místem pro ty, kteří chtějí bydlet v klidu menší obce, a přitom mít město na dosah. Najdete zde školu, školku, dětské i fotbalové hřiště, knihovnu a kulturní zázemí. Milovníci přírody ocení blízké jezero Mlejnek, turistické stezky i cyklotrasy vedoucí malebnou krajinou. Díky výbornému autobusovému spojení jste během chvilky v Kolíně a díky napojení na dálnici i rychle v Praze. Tento dům je skvělou volbou pro rodinu, která hledá moderní, úsporné bydlení s atmosférou domova a klidem venkova.
V případě zájmu nebo bližší informace se neváhejte ozvat.
| Cena: | (za nemovitost) 9 290 000,- Kč |
|---|
| Druh objektu | cihlová |
|---|---|
| Stav objektu | novostavba |
| Energetická třída | B - Velmi úsporná |
| Plocha teras | 7 m² |
| Vybavení | terasa |
| Umístění objektu | centrum |
| Topení | Jiné |
| Doprava | silnice autobus |
| Voda | dálkový vodovod |
| Odpad | Městská kanalizace |
| Počet míst k parkování | 2 |
| Zastavěná plocha | 93 m² |
| Plocha parcely | 192 m² |
| Ostatní | Parkoviště |
| Užitná plocha | 93 m² |
| Komunikace | dlážděná |
| Inženýrské sítě | Vodovod Kanalizace |
| Charakter okolní zástavby | obytná |
| Poloha objektu | řadový |




