| Číslo zakázky: | 229846 |  Karta nemovitosti | 
|---|---|---|
| Typ zakázky: | prodej | 
Hledáte moderní bydlení v klidné lokalitě s dobrou dostupností do Prahy? Pak je tento rodinný dům přesně pro vás!
Nabízíme k prodeji rodinný dům, novostavbu o dispozici 3+kk s užitnou plochou 82 m² v obci Veliká Ves, pouhých pár minut od Prahy. Dům je ve výborném stavu a je připraven k okamžitému nastěhování. Součástí prodeje je i vlastní zahrada, která nabízí ideální prostor pro relaxaci, dětské hry nebo grilování s přáteli.Jedná se o klidnou lokalitu s pohodovými sousedy. V okolí je již stavební uzávěra, jistota klidu a pohody v blízkém okolí.
Na tento dům je vypracován bankovní odhad s odhadní cenou 10mio CZK.
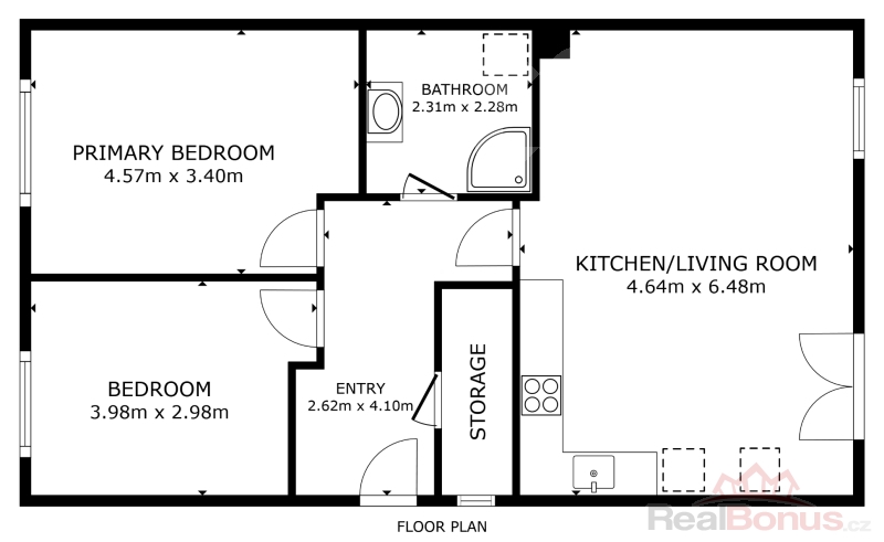
Dispozice a vybavení:
Dům s praktickou dispozicí 3+kk nabízí dostatek prostoru pro pohodlné bydlení. Díky rohovému umístění si užijete více soukromí a dostatek denního světla. Dům je navržen s ohledem na moderní standardy a nízké provozní náklady, což dokládá i energetická náročnost třídy B.
Detailní popis dispozice: 
Po vstupu do domu se ocitnete v prostorné vstupní chodbě, která nabízí dostatek místa pro botník a odkládání svršků.
Dále z chodby vstoupíte do hlavní obytné části domu, kterou tvoří kuchyně spojená s obývacím pokojem. Tento otevřený prostor je ideální pro společné rodinné chvíle a nabízí dostatek prostoru pro kuchyňskou linku, jídelní stůl i pohodlnou sedací soupravu.
Na opačné straně domu se nachází klidová zóna s ložnicemi a koupelnou. Hlavní ložnice nabízí dostatek místa pro manželskou postel i úložné prostory. Druhá ložnice je ideální jako dětský pokoj, pracovna nebo pokoj pro hosty.
Mezi ložnicemi je umístěna koupelna, ve které se nachází sprchový kout, umyvadlo a samostatná toaleta. 
Lokalita a občanská vybavenost:
Veliká Ves v okrese Praha-východ je ideální lokalita pro ty, kteří hledají klidné venkovské bydlení s rychlým přístupem k městské infrastruktuře. Výborná dostupnost do Prahy zajišťuje rychlé spojení do zaměstnání či za zábavou. V blízkosti se nachází nájezd na dálnici D10. V obci a blízkém okolí naleznete veškerou potřebnou občanskou vybavenost, jako je mateřská a základní škola, obchody a supermarket pro každodenní nákupy, restaurace a kavárny, zdravotnická zařízení a lékárny a v neposlední řadě i sportovní a rekreační možnosti pro volnočasové aktivity. Okolní krajina zároveň nabízí spoustu příležitostí k procházkám, cyklistice a relaxaci v přírodě. 
V následujícíh letech je plánováno prodloužení tramvajové linky z pražských Kobylis až do Odolené Vody.
Pro více informací nebo domluvení prohlídky nás neváhejte kontaktovat.
| Cena: | (za nemovitost) 8 990 000,- Kč | 
|---|
| Počet podlaží objektu | 1 | 
|---|---|
| Druh objektu | cihlová | 
| Stav objektu | velmi dobrý | 
| Energetická třída | B - Velmi úsporná | 
| Vlastnictví | osobní | 
| Vlastní pozemek | 500 m² | 
| Plocha teras | 20 m² | 
| Vybavení | terasa zahrada podkroví | 
| Telekomunikace | Telefon Internet Vedení PC sítě | 
| Ostatní rozvody | Satelit Kabelová televize Kabelové rozvody Ostatní rozvody | 
| Topení | Lokální - elektrické | 
| Doprava | dálnice silnice autobus | 
| Elektřina | 230 V 380 V | 
| Voda | dálkový vodovod | 
| Odpad | Městská kanalizace | 
| Plyn | Není | 
| Stáří objektu | 2 020 | 
| Rok kolaudace | 2 020 | 
| Počet míst k parkování | 2 | 
| Zastavěná plocha | 92 m² | 
| Plocha parcely | 500 m² | 
| Ostatní | Plot Parkoviště | 
| Užitná plocha | 82 m² | 
| Počet bytů - celkem | 1 | 
| Poloha objektu | rohový | 
| Velikost bytů (3+1, 2+kk atd.) | 3kk | 
| K dispozici od | 31.08.2025 | 





