| Číslo zakázky: | 19470 | ![]() Karta nemovitosti |
|---|---|---|
| Typ zakázky: | prodej |
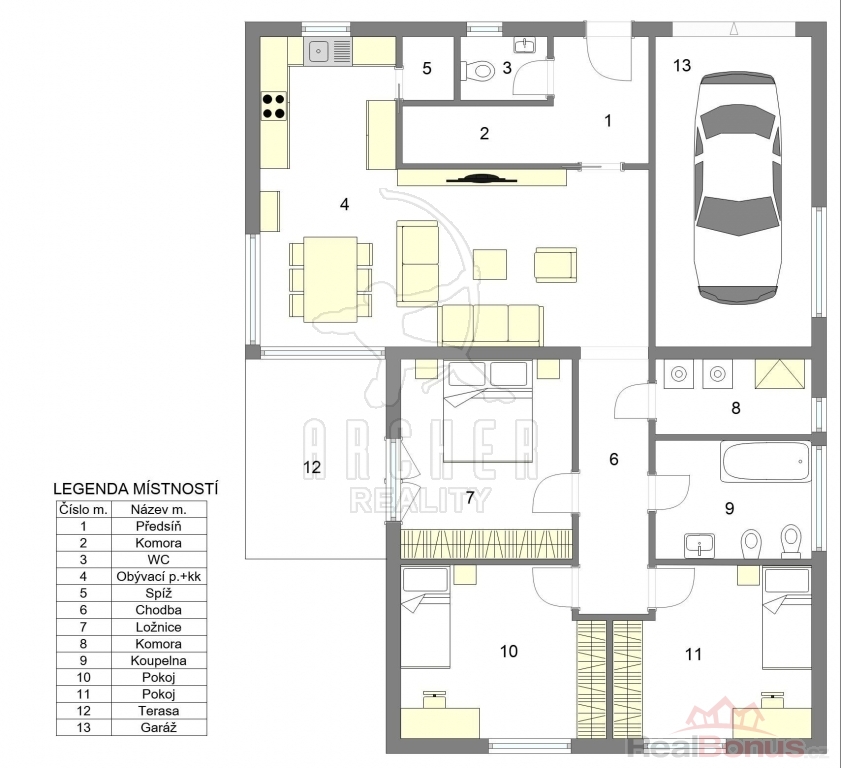
Exkluzivně nabízíme k prodeji dům 4+kk s garáží, s podlahovou plochou 152m2, na pozemku 666 m2, Krupá u Českého Brodu Moderní rodinný dům s krásnou zahradou, Krupá, okres Kolín.
Tento moderní rodinný dům v klidné obci Krupá u Kolína je ideální pro rodinné bydlení i pro ty, kteří hledají klid, soukromí a kontakt s přírodou.
Dům byl zkolaudován v roce 2021 a byl pouze minimálně obýván, takže je ve výborném, téměř novém stavu. Disponuje užitnou plochou 152 m2, zastavěnou plochou 180 m2 a nachází se na pozemku o velikosti 666 m2, který nabízí dostatek prostoru pro relaxaci, zahradničení i dětské hry.
Součástí domu je garáž, komfortní parkování zajišťují také pojezdová vrata na dálkové ovládání.
Interiér domu je světlý, vzdušný a prakticky řešený. Dům je částečně vybaven kuchyňskou linkou, což umožňuje novým majitelům doladit si interiér dle vlastních představ. Vytápění je řešeno podlahovým topením s elektrokotlem, přičemž systém je připraven na snadnou výměnu za tepelné čerpadlo, což nabízí možnost budoucích úspor na energiích. Jako doplňkové topení jsou krbová kamna.
Velkou předností nemovitosti je krásná, udržovaná zahrada, která poskytuje dostatek soukromí a prostoru pro rodinný život. Tichá lokalita bez rušného provozu je ideální pro rodiny s dětmi i pro ty, kteří hledají klidné bydlení v dosahu města.
Hlavní výhody:
moderní dům z roku 2021
minimálně obývaný, ve výborném stavu
užitná plocha 152 m2
pozemek 666 m2
garáž + pojezdová vrata na dálkové ovládání
podlahové topení, možnost tepelného čerpadla
klidná lokalita
ideální pro rodinu s dětmi
Tento dům představuje skvělou kombinaci moderního bydlení, klidu a komfortu s výbornou dostupností do Kolína i okolí.
Doporučujeme prohlídku. Třída G - Mimořádně nehospodárná Energetický štítek budovy (PENB) nebyl dodán.
| Cena: |
(za nemovitost) 12 887 200,- Kč
(včetně provize)
|
|---|
| Celková podlahová plocha | 152 m² |
|---|---|
| Druh objektu | cihlová |
| Stav objektu | novostavba |
| Energetická třída | G - Mimořádně nehospodárná |
| Vlastní pozemek | 846 m² |
| Umístění objektu | klidná část obce |
| Vybaveno | Částečně zařízeno |
| Zastavěná plocha | 180 m² |
| Užitná plocha | 152 m² |
| Plocha zahrady | 666 m² |
| Poloha objektu | samostatný |




